highlight_off
Riferimento annuncio 227135 info

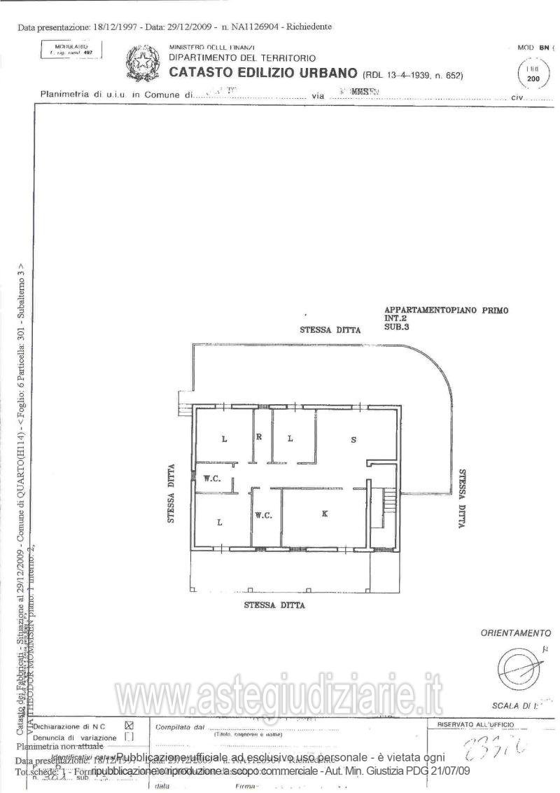
Appartamento Via Theodor Mommsen, 1, 80010 Quarto (NA)

0
€ 91.125
Vendita all'asta Senza incanto - LOTTO 1: Unità immobiliare al piano seminterrato e locale ripostiglio privo di autorizzazione; unità immobiliare al piano primo con balconi. Prezzo base € 91.125,00 (offerta minima € 68.400,00). Data vendita 20/01/2026 ore 10:30. Giudice Elisa Asprone. Professionista delegato alla vendita Dott. Marco Coppin - Email "marcoppin@gmail.com"; Tel. 0814612488. Custode Giudiziario Dott. Marco Coppin - Email "marcoppin@gmail.com"; Tel. 0812134858. Rif. Tribunale di Napoli - Esecuzione immobiliare post legge 80 n. 1853/2007

Superficie mq
Vani
Bagni
Piano 0

Tipologia di vendita Giudiziaria
Modalità di vendita Presso il venditore
Termine presentazione offerte 01/01/1900 ore 00:00
Data e ora inizio gara 20/01/2026 ore 10:30
Codice ID astegiudiziarie.it 171396
0
€ 91.125

Ti interessa questa vendita?

north_east

Clicca qui per essere indirizzato alla scheda sul sito di provenienza

Bene di astegiudiziarie.it