highlight_off
Riferimento annuncio 323213 info

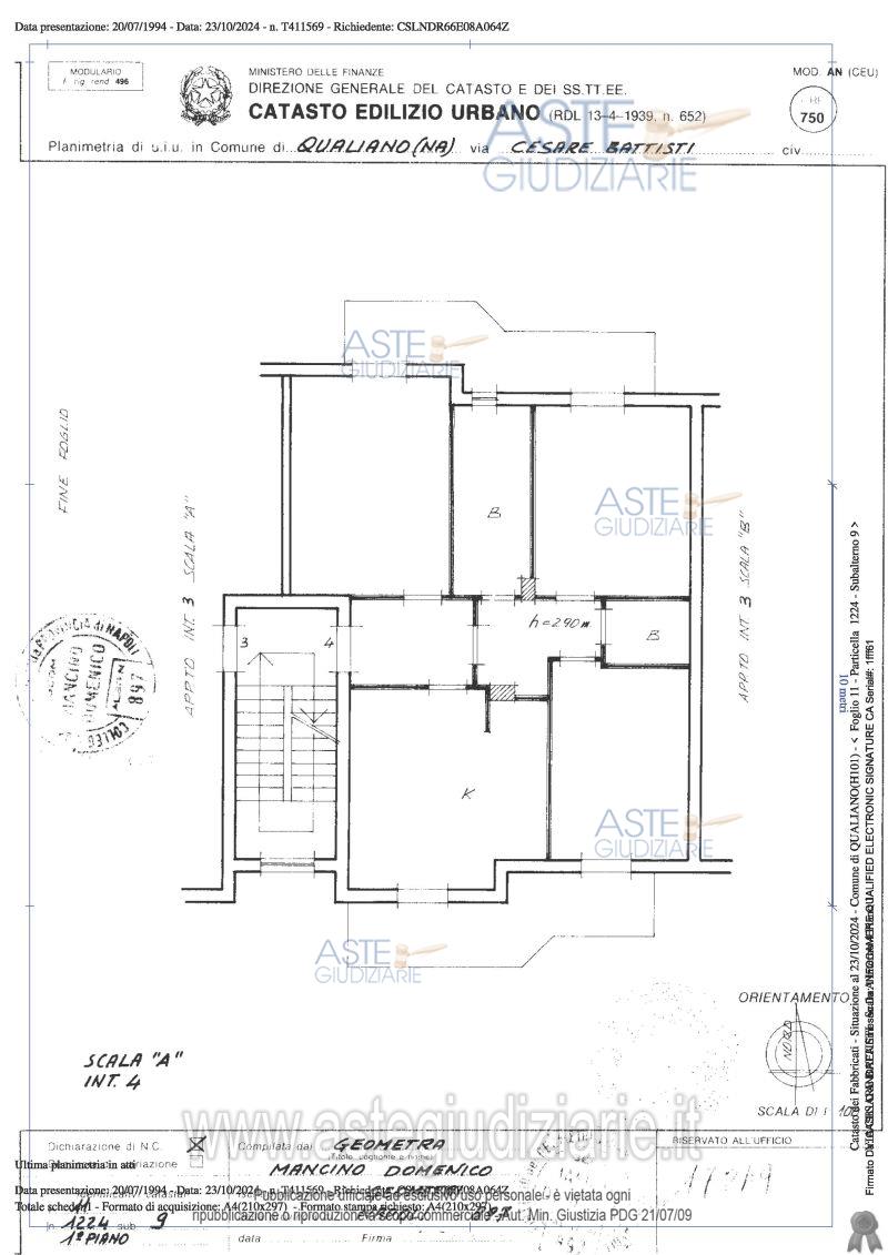
Appartamento Via Cesare Battisti, 33, 35, 39, 80019 Qualiano (NA)

5,50
94,00
2
0
€ 160.000
Vendita all'asta Senza incanto, con gara telematica asincrona - LOTTO 1: Piena ed intera proprietà dell’unità immobiliare ad uso abitativo al piano primo, composta da ampio ingresso, cucina-pranzo, soggiorno, disimpegno, ripostiglio, due bagni e due camere da letto, oltre due ampi balconi a livello, con annessa cantina di mq. 30 al piano seminterrato costituita da un unico ambiente. I beni, occupati senza titolo, sono in corso di liberazione da parte del custode. Prezzo base € 160.000,00 (offerta minima € 120.000,00). Data inizio operazioni di vendita: 17/03/2026 ore 15:00. Giudice Dott. Annamaria Buffardo. Professionista delegato alla vendita Avv. Rita Vaccaro. Custode Giudiziario Avv. Rita Vaccaro - Email "avv.ritavaccaro.deleghe@gmail.com". Rif. Tribunale di Napoli Nord - Espropriazione immobiliare (cartabia) n. 384/2023

Superficie 94,00 mq
Vani 5,50
Bagni 2
Piano 0

Tipologia di vendita Giudiziaria
Modalità di vendita Asincrona telematica
Termine presentazione offerte 01/01/1900 ore 00:00
Data e ora inizio gara 17/03/2026 ore 15:00
Codice ID astegiudiziarie.it 4341236
5,50
94,00
2
0
€ 160.000

Ti interessa questa vendita?

north_east

Clicca qui per essere indirizzato alla scheda sul sito di provenienza

Bene di astegiudiziarie.it