highlight_off
Riferimento annuncio 320275 info

Appartamento Via Peppino Impastato, 15, 70017 Putignano BA, Italia, 70017 Putignano (BA)

0
€ 198.900
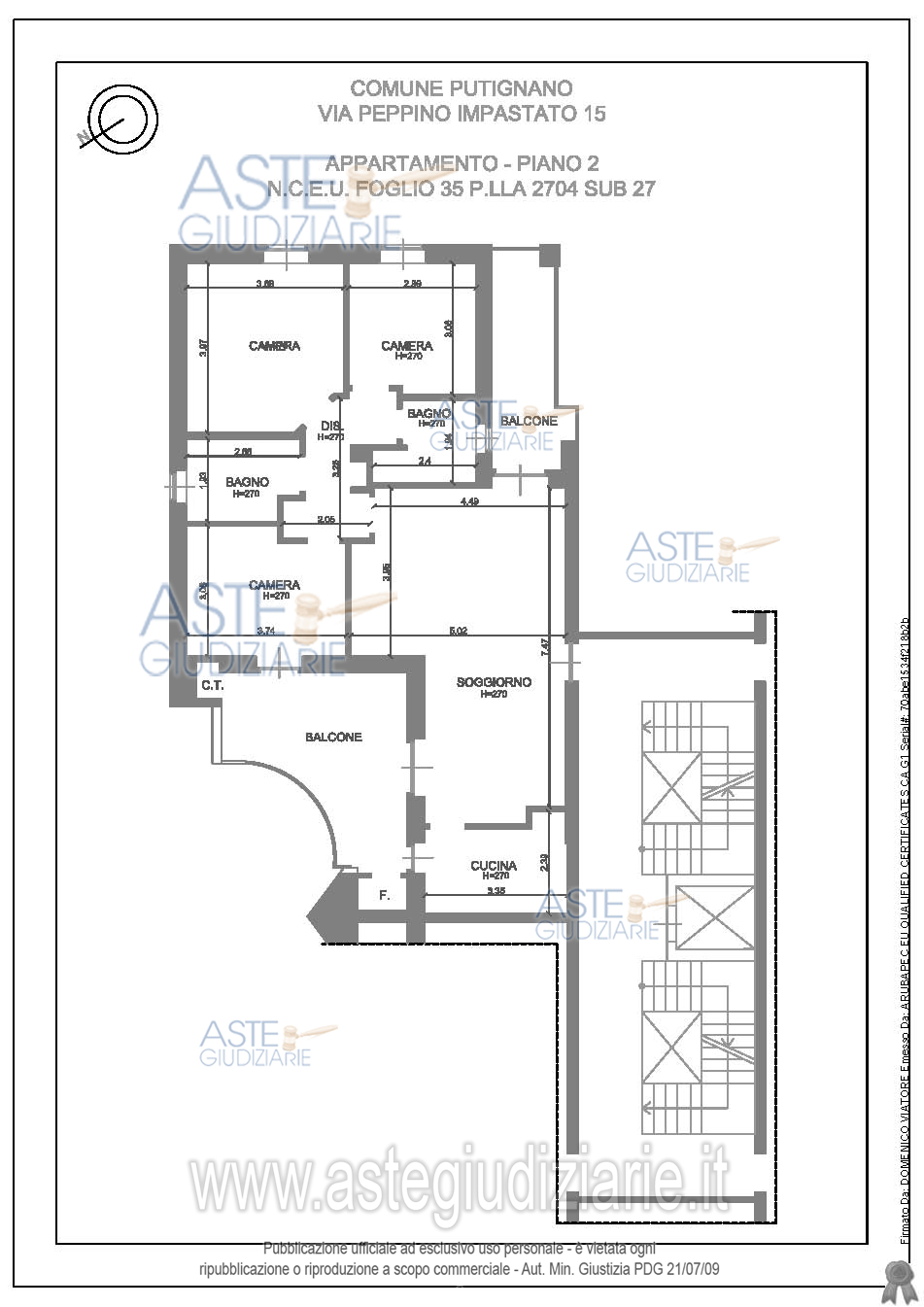
Vendita all'asta Senza incanto, con gara telematica asincrona - LOTTO UNICO: Diritto di proprietà per 1/1 dell’appartamento ubicato in Putignano, al secondo piano dell’edificio condominiale di Via Peppino Impastato civ. n. 15, della superficie commerciale di mq 114,69 e presenta la porta di ingresso sulla destra arrivando sul pianerottolo dal corpo scala Diritto di proprietà per 1/1 del box auto ubicato in Putignano, al primo piano interrato dell’edificio condominiale e con accesso da via Peppino Impastato civ. 25 . Prezzo base € 198.900,00 (offerta minima € 149.175,00). Data inizio operazioni di vendita: 03/03/2026 ore 09:30. Giudice Dott. Antonio Ruffino. Professionista delegato alla vendita Avv. Roberto Campi - Email "avv.robertocampi@libero.it"; Cell. 3405936907; Tel. 3405936907. Custode Giudiziario Avv. Roberto Campi - Email "avv.robertocampi@libero.it"; Cell. 3405936907; Tel. 3405936907. Rif. Tribunale di Bari - Espropriazione immobiliare (cartabia) n. 218/2024

Superficie mq
Vani
Bagni
Piano 0

Tipologia di vendita Giudiziaria
Modalità di vendita Asincrona telematica
Termine presentazione offerte 01/01/1900 ore 00:00
Data e ora inizio gara 03/03/2026 ore 09:30
Codice ID astegiudiziarie.it 4340186
0
€ 198.900

Ti interessa questa vendita?

north_east

Clicca qui per essere indirizzato alla scheda sul sito di provenienza

Bene di astegiudiziarie.it