Riferimento annuncio 317938
        
    
    Appartamento Via Mazzini, 52, 74026 Pulsano TA, Italia, 74026 Pulsano (TA)
                
                6,50
            
            
                
                134,50
            
            
                
                1
            
            
                
                0
            
        
€ 44.800    
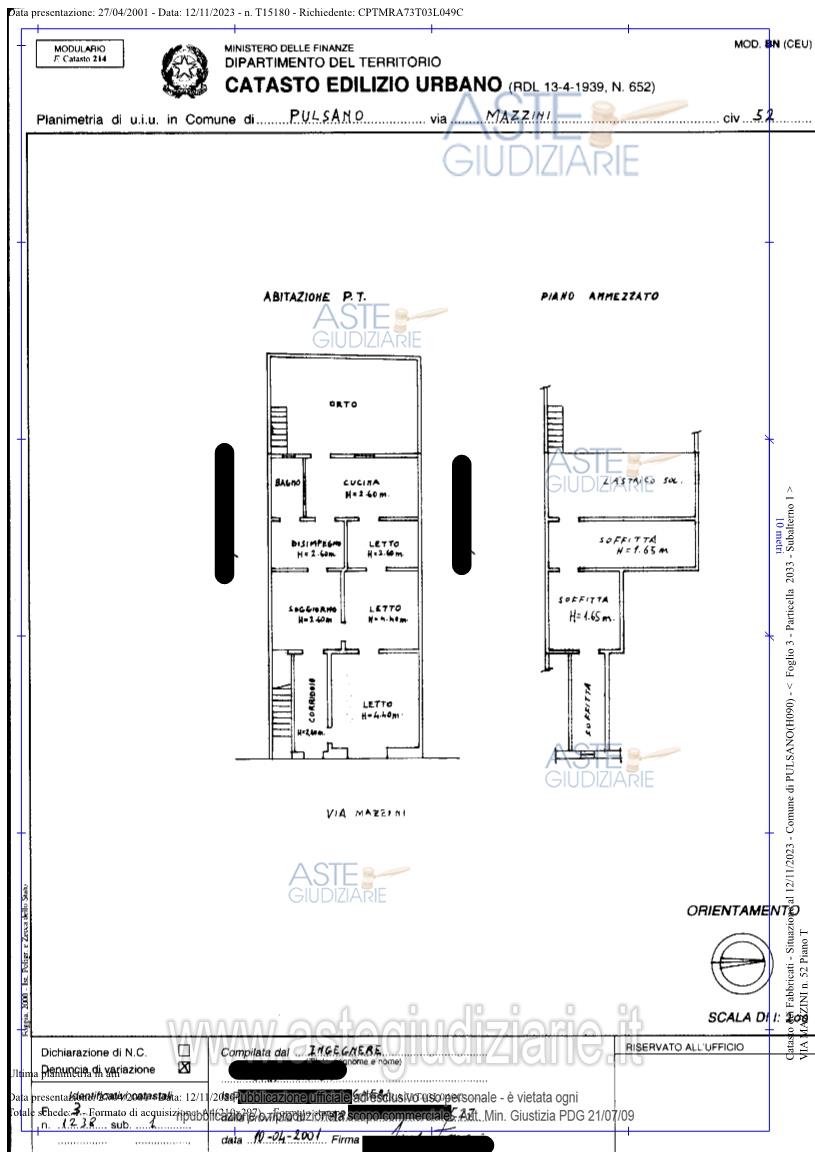
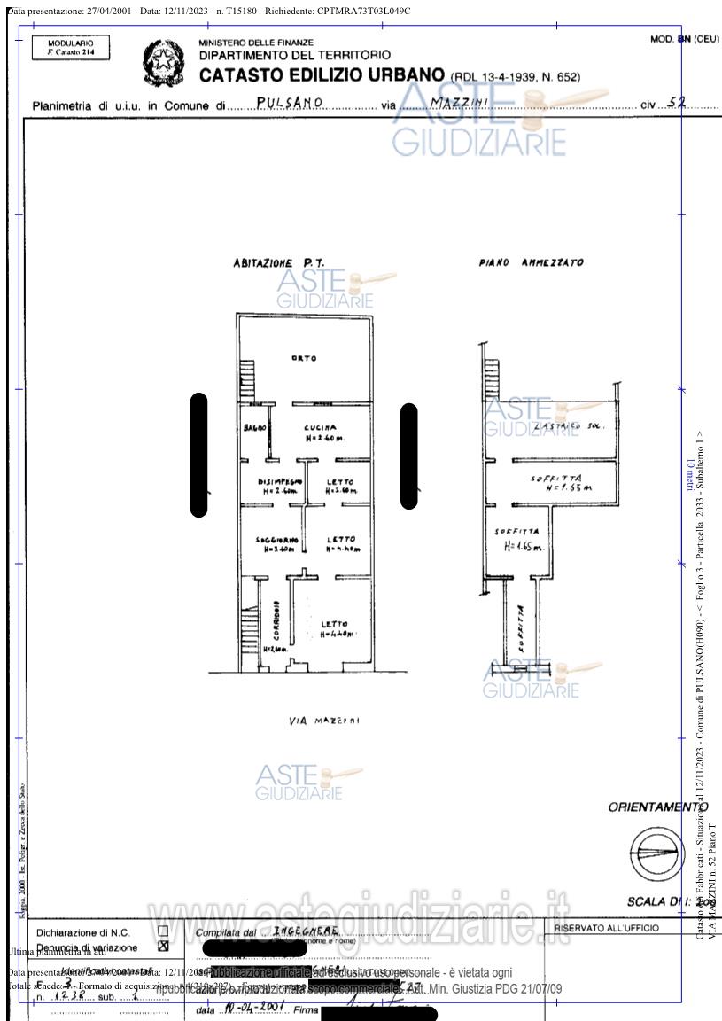
                Vendita all'asta Senza incanto, con gara telematica asincrona - LOTTO 1:  Piena proprietà dell’unità immobiliare sita nel Comune di PULSANO, via Mazzini n. 52, PianoTerra, della superficie lorda di 134,50 mq. Prezzo base € 44.800,00 (offerta minima € 33.600,00). Data inizio operazioni di vendita: 16/12/2025 ore 16:30. Professionista delegato alla vendita Avv. Massimo Favatà. Custode Giudiziario Avv. Massimo Favatà - Email "avv.massimofavata@gmail.com"; Tel. 0994538630.  Rif. Tribunale di Taranto - Contenzioso civile n. 4039/2019
            
   
| Superficie | 134,50 mq | 
|---|---|
| Vani | 6,50 | 
| Bagni | 1 | 
| Piano | 0 | 
| Tipologia di vendita | Giudiziaria | 
|---|---|
| Modalità di vendita | Asincrona telematica | 
| Termine presentazione offerte | 15/12/2025 ore 12:00 | 
| Data e ora inizio gara | 16/12/2025 ore 16:30 | 
 
                         
                         
                         
                         
                         
                         
                         
                         
                         
                         
                         
                         
                         
                         
                        