highlight_off
Riferimento annuncio 324335 info

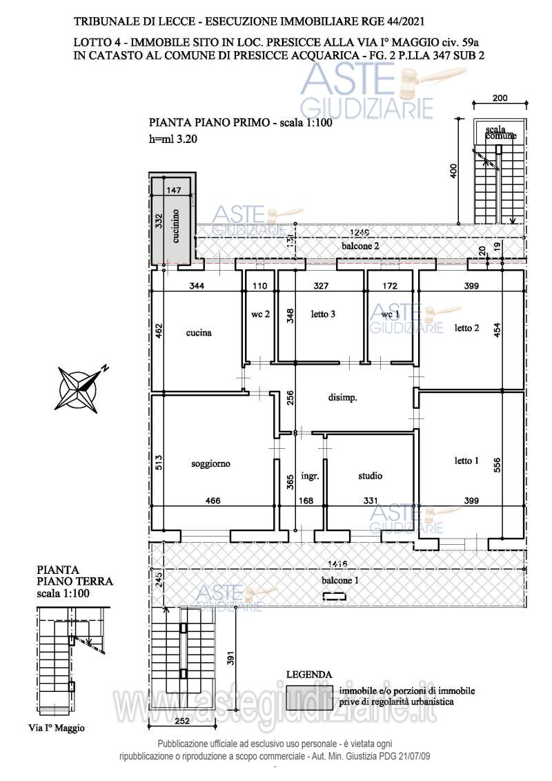
Appartamento Via I Maggio, 59/A Presicce-Acquarica, 73054 Presicce (LE)

8,00
503,50
1
€ 88.657
Vendita all'asta Senza incanto, con gara telematica asincrona - LOTTO 4: LOTTO 4 - Piena proprietà per la quota di 1000/1000 di Abitazione di tipo civile, sita in Presicce – Acquarica alla Via I Maggio n. 59/A. Posto al piano primo sviluppa una superficie reale lorda di 503.50 mq. Identificazione catastale: - foglio 2, particella 347, (Catasto Fabbricati), subalterno 2, categoria A/2, classe 1. Prezzo base € 88.656,75 (offerta minima € 66.492,56). Data inizio operazioni di vendita: 16/03/2026 ore 10:00. Professionista delegato alla vendita Avv. Adele Gaetana Lagna - Email "avvadelelagna@alice.it"; Cell. 3284427677; Tel. 0836569426. Custode Giudiziario Avv. Adele Gaetana Lagna - Email "avvadelelagna@alice.it"; Cell. 3284427677; Tel. 0836569426. Rif. Tribunale di Lecce - Esecuzione immobiliare post legge 80 n. 44/2021

Superficie 503,50 mq
Vani 8,00
Bagni
Piano 1

Tipologia di vendita Giudiziaria
Modalità di vendita Asincrona telematica
Termine presentazione offerte 01/01/1900 ore 00:00
Data e ora inizio gara 16/03/2026 ore 10:00
Codice ID astegiudiziarie.it 4343289
8,00
503,50
1
€ 88.657

Ti interessa questa vendita?

north_east

Clicca qui per essere indirizzato alla scheda sul sito di provenienza

Bene di astegiudiziarie.it