highlight_off
Riferimento annuncio 305200 info

Appartamento Via del Cantiere, 5, 80078 Pozzuoli NA, Italia, 80078 Pozzuoli (NA)

5,50
94,00
1
€ 113.250
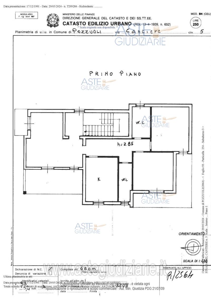
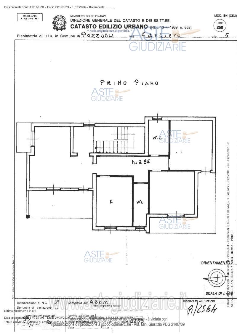
Vendita all'asta Senza incanto, con gara telematica asincrona - LOTTO 1: Appartamento in Pozzuoli alla via Del Cantiere n. 5 composto da soggiorno-cucina, tre camere, due bagni, disimpegno e tre balconi, ubicato al primo piano di una viletta su due livelli con circostante area in parte pavimentata ed in parte trattata a verde. Prezzo base € 113.250,00 (offerta minima € 84.937,50). Data inizio operazioni di vendita: 02/12/2025 ore 16:30. Professionista delegato alla vendita Avv. Stefano Vitale - Email "stefanovitale@studiolegalevitale.net"; Cell. 3389878810; Tel. 08118088520. Custode Giudiziario Avv. Stefano Vitale - Email "stefanovitale@studiolegalevitale.net"; Cell. 3389878810; Tel. 08118088520. Rif. Tribunale di Napoli - Espropriazione immobiliare (cartabia) n. 223/2024

Superficie 94,00 mq
Vani 5,50
Bagni
Piano 1

Tipologia di vendita Giudiziaria
Modalità di vendita Asincrona telematica
Termine presentazione offerte 01/01/1900 ore 00:00
Data e ora inizio gara 02/12/2025 ore 16:30
Codice ID astegiudiziarie.it 4327907
5,50
94,00
1
€ 113.250

Ti interessa questa vendita?

north_east

Clicca qui per essere indirizzato alla scheda sul sito di provenienza

Bene di astegiudiziarie.it