highlight_off
Riferimento annuncio 321280 info

Appartamento Via di Costa della Gaveta, 327, 85100 Potenza (PZ)

10,00
1000,00
0
€ 201.190
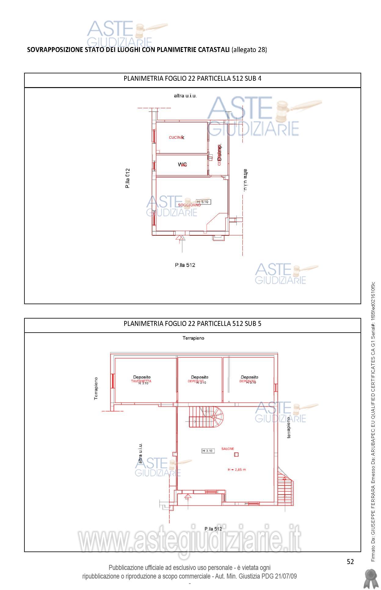
Vendita all'asta Mezzo commissionario, con gara telematica asincrona - LOTTO UNICO: Piena proprietà quota 1/1 nel Comune di Potenza alla Via Costa della Gaveta n. 327 unità immobiliare Fabbricato identificato nel Catasto Fabbricati:foglio 22 particella 512 sub. 2 categ. A/7;foglio 22 particella 512 sub. 4, categ. A/7;foglio 22 particella 512 sub. 5, categ. C/2;foglio 22 particella 512 sub. 6, categ. C/2;Garage annesso al fabbricato principale: al foglio 22 particella 511 sub 1 categ. C/6.Terreni identificati:- al foglio 22 particelle 1605, 1608, 511, 512. Prezzo base € 201.190,00 (offerta minima € 150.893,00). Data inizio operazioni di vendita: 06/02/2026 ore 15:30. Professionista delegato alla vendita Avv. Antonio Casulli - Email "avv.antonio.casulli@gmail.com"; Cell. 3356647447; Tel. 0971443408. Custode Giudiziario Avv. Antonio Casulli - Email "avv.antonio.casulli@gmail.com"; Cell. 3356647447; Tel. 0971443408. Rif. Tribunale di Potenza - Esecuzione immobiliare post legge 80 n. 12/2022

Superficie 1000,00 mq
Vani 10,00
Bagni
Piano 0

Tipologia di vendita Giudiziaria
Modalità di vendita Asincrona telematica
Termine presentazione domande 01/01/1900 ore 00:00
Data e ora inizio gara 06/02/2026 ore 15:30
Codice ID astegiudiziarie.it 4340972
10,00
1000,00
0
€ 201.190

Ti interessa questa vendita?

north_east

Clicca qui per essere indirizzato alla scheda sul sito di provenienza

Bene di astegiudiziarie.it