highlight_off
Riferimento annuncio 295845 info

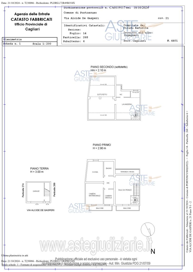
Appartamento Via De Gasperi, 21, 09010 Portoscuso SU, Italia, 09010 Portoscuso (SU)

6,50
145,00
1
0
€ 66.586
Vendita all'asta Senza incanto, con gara telematica asincrona - LOTTO UNICO: Unità indipendente ad uso civile abitazione su tre piani, sita in Comune di Portoscuso (SU), Via Alcide de Gasperi n. 21, composta al piano terra da garage e scala di accesso ai successivi piani, al piano primo da salone, bagno, disimpegno, ripostiglio, due camere da letto con due balconate ed al piano secondo da zona lavanderia e stenditoio. Prezzo base € 66.586,00 (offerta minima € 49.940,00). Data inizio operazioni di vendita: 26/11/2025 ore 15:00. Giudice Dott. Silvia Cocco. Professionista delegato alla vendita Dott. Carolina Casu - Email "studiocasu.dott@tiscali.it"; Cell. 3454100790; Tel. 0706848841. Custode Giudiziario Istituto Vendite Giudiziarie - Email "ivg.visiteimmobili@tiscali.it"; Tel. 0702299036. Rif. Tribunale di Cagliari - Esecuzione immobiliare post legge 80 n. 390/2022

Superficie 145,00 mq
Vani 6,50
Bagni 1
Piano 0

Tipologia di vendita Giudiziaria
Modalità di vendita Asincrona telematica
Termine presentazione offerte 25/11/2025 ore 15:00
Data e ora inizio gara 26/11/2025 ore 15:00
Codice ID astegiudiziarie.it 4320621
6,50
145,00
1
0
€ 66.586

Ti interessa questa vendita?

north_east

Clicca qui per essere indirizzato alla scheda sul sito di provenienza

Bene di astegiudiziarie.it