highlight_off
Riferimento annuncio 322990 info

Appartamento Via Giuseppe di Vittorio, 42,, 73010 Porto Cesareo (LE)

105,00
333,00
0
€ 144.253
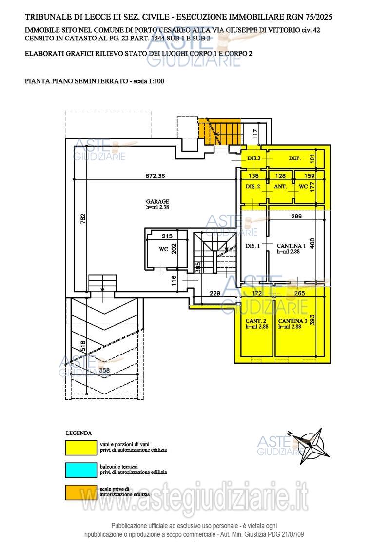
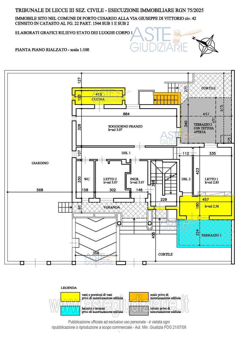
Vendita all'asta Senza incanto, con gara telematica asincrona - LOTTO UNICO: A - Piena proprietà per la quota di 1000/1000 di abitazione di tipo economico, sita in Porto Cesareo (Lecce) alla Via Giuseppe Di Vittorio Civ. 42. Nel NCEU al Fl 22, pc 1554 sub. 1, cat. A/3, classe 4, Consistenza: 10,5 vani B. Piena proprietà per la quota di 1000/1000 di un garage, sito in Porto Cesareo (Lecce) Via Giuseppe Di Vittorio Civ. 42. Nel NCEU al Fl 22, pc.1554 sub 2, cat. C/6, classe 3, Consistenza: 60 Mq. Prezzo base € 144.252,50 (offerta minima € 108.189,50). Data inizio operazioni di vendita: 18/06/2026 ore 10:00. Professionista delegato alla vendita: Avv. Adele Gaetana Lagna - Email "avvadelelagna@alice.it"; Cell. 328/4427677. Custode Giudiziario: Avv. Adele Gaetana Lagna - Email "avvadelelagna@alice.it"; Cell. 328/4427677. Rif. Tribunale di Lecce - Espropriazione immobiliare (cartabia) n. 75/2025

Superficie 333,00 mq
Vani 105,00
Bagni
Piano 0

Tipologia di vendita Giudiziaria
Modalità di vendita Asincrona telematica
Termine presentazione offerte 01/01/1900 ore 00:00
Data e ora inizio gara 18/06/2026 ore 10:00
Codice ID astegiudiziarie.it 4342401
105,00
333,00
0
€ 144.253

Ti interessa questa vendita?

north_east

Clicca qui per essere indirizzato alla scheda sul sito di provenienza

Bene di astegiudiziarie.it