highlight_off
Riferimento annuncio 322926 info

Appartamento Via Tre Fontane, 33, 03037 Pontecorvo FR, Italia, 03037 Pontecorvo (FR)

2,52
0
€ 244.140
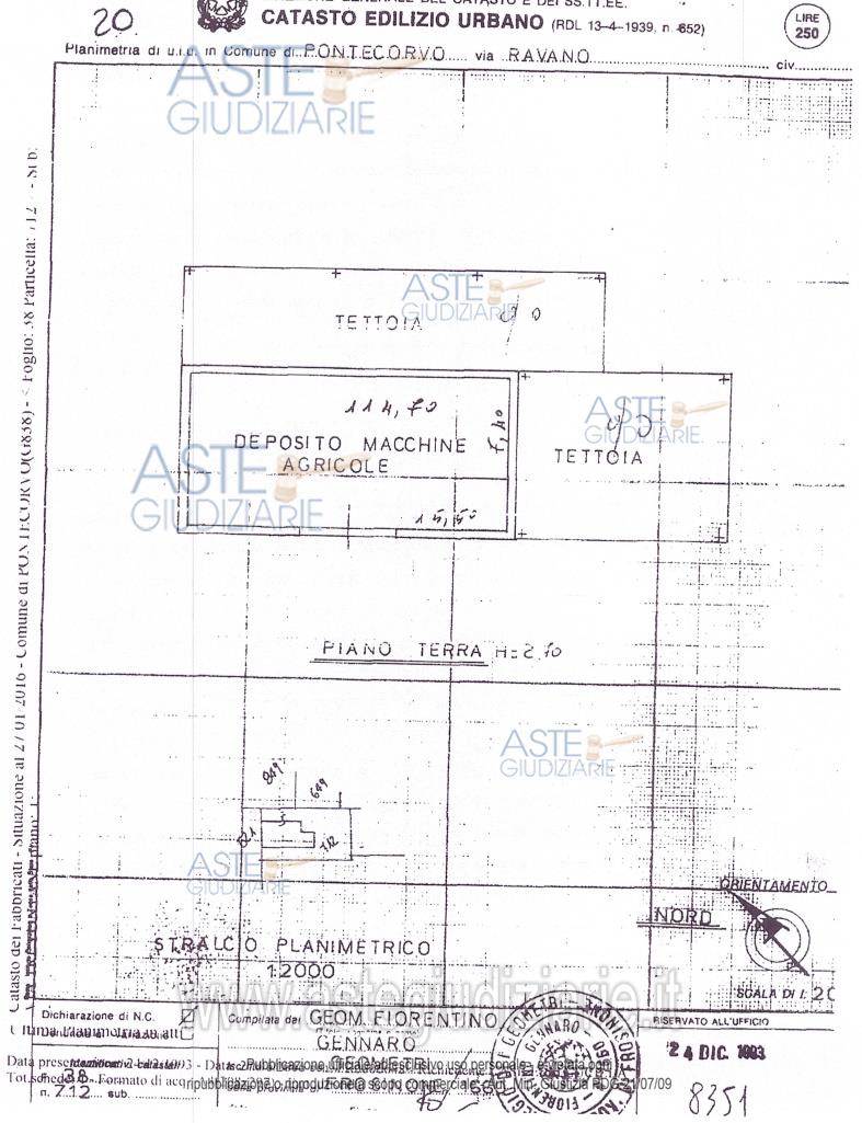
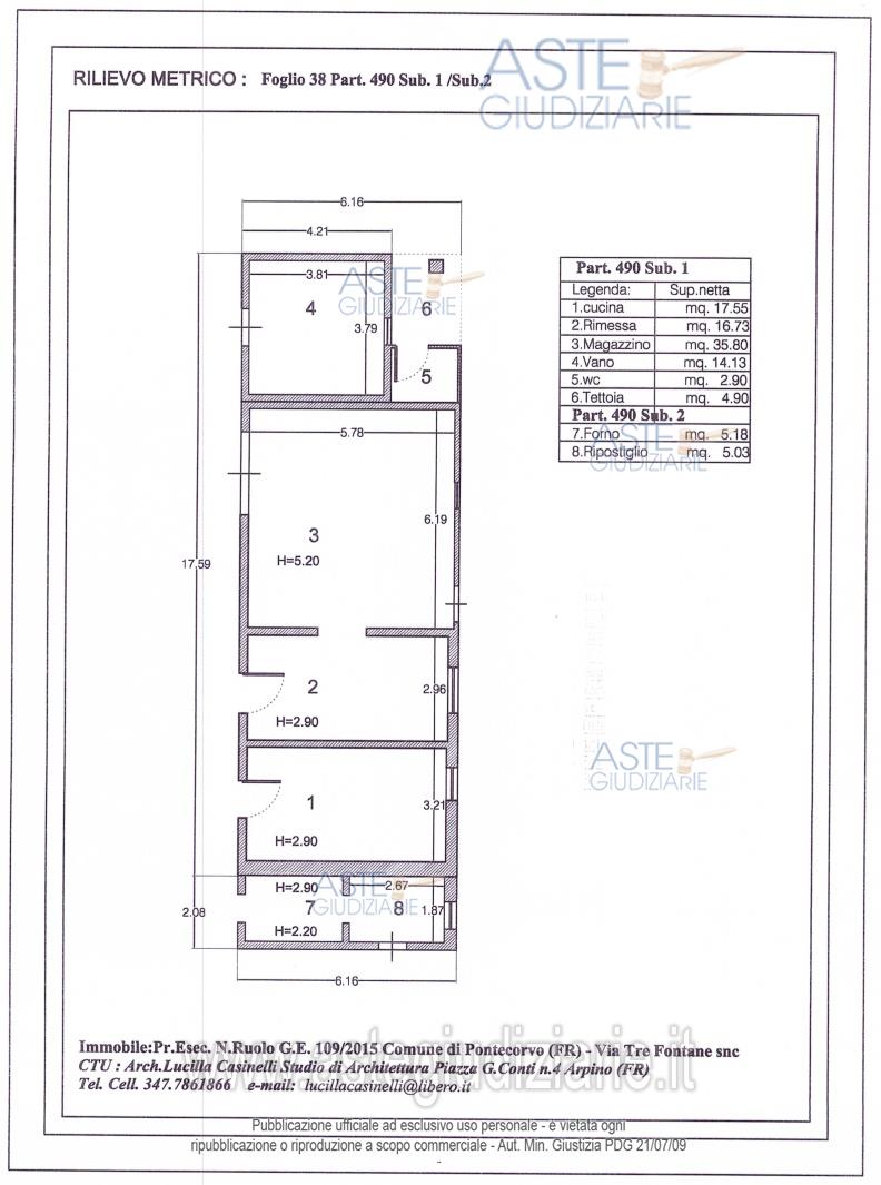
Vendita all'asta Senza incanto, con gara telematica asincrona - LOTTO 1: Fabbricato per civile abitazione a duplice elevazione in muratura ordinaria, tetto a capanna, intonaci civili rustici e serramenti in legno e PVC, ricadente in agro di Pontecorvo (FR), Via Tre Fontane n. 33, avente piccola corte esclusiva sul lato ovest più una consistente estensione di terreno circostante. In Catasto Fabbricati F.io 38 part 661 sub 1 ZC 1 Cat A4 – F.io 38 part. 661 sub 2 Zc1 Cat. A2 – F.io 38, part. 661 Sub 3 Zc1 Cat. C1 + terreno in Catasto terreni f.io 38 p.lla 1521 – sup. are 02,52. Prezzo base € 244.140,00 (offerta minima € 183.105,00). Data inizio operazioni di vendita: 26/02/2026 ore 10:30. Professionista delegato alla vendita Avv. Bruna Colacicco - Email "bruna.colacicco63@gmail.com"; Cell. 3388780883; Tel. 3388780883. Custode Giudiziario Avv. Bruna Colacicco - Email "bruna.colacicco63@gmail.com"; Cell. 3388780883; Tel. 3388780883. Rif. Tribunale di Cassino - Esecuzione immobiliare post legge 80 n. 109/2015

Superficie 2,52 mq
Vani
Bagni
Piano 0

Tipologia di vendita Giudiziaria
Modalità di vendita Asincrona telematica
Termine presentazione offerte 01/01/1900 ore 00:00
Data e ora inizio gara 26/02/2026 ore 10:30
Codice ID astegiudiziarie.it 4342470
2,52
0
€ 244.140

Ti interessa questa vendita?

north_east

Clicca qui per essere indirizzato alla scheda sul sito di provenienza

Bene di astegiudiziarie.it