highlight_off
Riferimento annuncio 302540 info

Appartamento Via Risaia, 40, 51019 Ponte Buggianese PT, Italia, 51019 Ponte Buggianese (PT)

9,00
218,00
0
€ 90.000
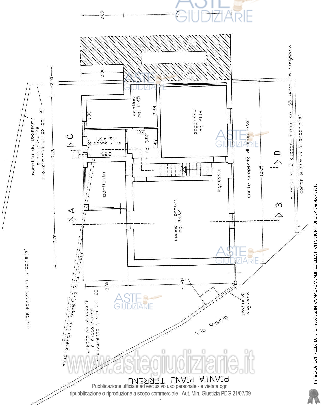
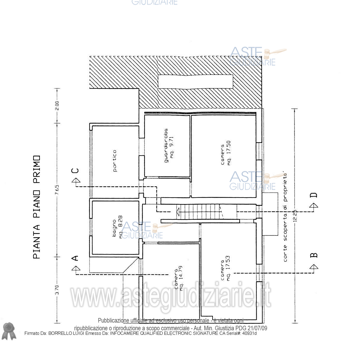
Vendita all'asta Senza incanto, con gara telematica asincrona - LOTTO UNICO: Terratetto, libero su tre lati sviluppatesi su due piani e composta al piano terra da piccolo ingresso, ampio locale ad uso cucina-pranzo, soggiorno, disimpegno, bagno, cantina, porticato, al piano primo da disimpegno, tre camere, bagno, locale guardaroba, portico, oltre sovrastante soffitta non abitabile il tutto oltre corte esclusiva su tre lati. Magazzino. Prezzo base € 90.000,00 (offerta minima € 67.500,00). Data inizio operazioni di vendita: 05/03/2026 ore 11:00. Professionista delegato alla vendita Avv. Filippo Querci - Email "filippoquerci@yahoo.it"; Tel. 0573 25172. Custode Giudiziario Istituto Vendite Giudiziarie Srl - Email "prenota.pt@isveg.it". Rif. Tribunale di Pistoia - Espropriazione immobiliare (cartabia) n. 139/2024

Superficie 218,00 mq
Vani 9,00
Bagni
Piano 0

Tipologia di vendita Giudiziaria
Modalità di vendita Asincrona telematica
Termine presentazione offerte 04/03/2026 ore 12:00
Data e ora inizio gara 05/03/2026 ore 11:00
Codice ID astegiudiziarie.it 4325582
9,00
218,00
0
€ 90.000

Ti interessa questa vendita?

north_east

Clicca qui per essere indirizzato alla scheda sul sito di provenienza

Bene di astegiudiziarie.it