highlight_off
Riferimento annuncio 310648 info

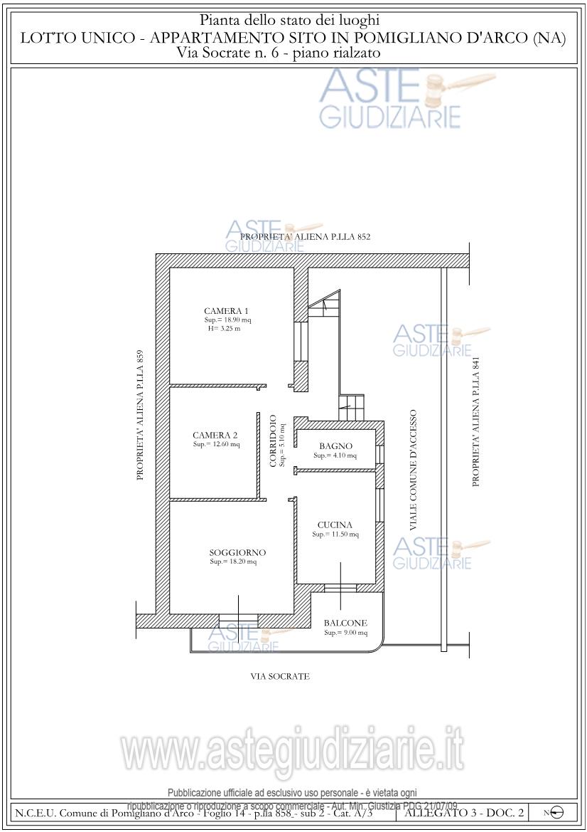
Appartamento via Socrate n.6, 80038 Pomigliano d'Arco (NA)

4,00
70,40
0
€ 116.250
Vendita all'asta Senza incanto, con gara telematica asincrona - LOTTO UNICO: Pomigliano d’Arco via Socrate 6 piano rialzato, appartamento, composto da ingresso,2camere,soggiorno,cucina,bagno,balcone.Sup.netta appartamento 70.40 mq. Occupato da debitori. Abusi1)ballatoio trasformato in balcone2)balcone trasformato in finestra3)finestra trasformata in balcone4)diversa distribuz. interna5)realizzazione finestra cucina6)altezza interna 3.25 m in luogo di 3.10 autorizzati.Abuso n.6 potrebbe rendere non applicabile sanatoria ma ex art. 34bis DPR 380/01 potrebbe consentirsene l’istruttoria. Prezzo base € 116.250,00 (offerta minima € 87.187,50). Data inizio operazioni di vendita: 10/12/2025 ore 09:30. Professionista delegato alla vendita Avv. Maria Luigia Miccio - Email "marialuigiamiccio@libero.it"; Cell. 3497580644. Custode Giudiziario Avv. Maria Luigia Miccio - Email "marialuigiamiccio@libero.it"; Cell. 3497580644. Rif. Tribunale di Nola - Espropriazione immobiliare (cartabia) n. 93/2023

Superficie 70,40 mq
Vani 4,00
Bagni
Piano 0

Tipologia di vendita Giudiziaria
Modalità di vendita Asincrona telematica
Termine presentazione offerte 01/01/1900 ore 00:00
Data e ora inizio gara 10/12/2025 ore 09:30
Codice ID astegiudiziarie.it 4331428
4,00
70,40
0
€ 116.250

Ti interessa questa vendita?

north_east

Clicca qui per essere indirizzato alla scheda sul sito di provenienza

Bene di astegiudiziarie.it