highlight_off
Riferimento annuncio 312690 info

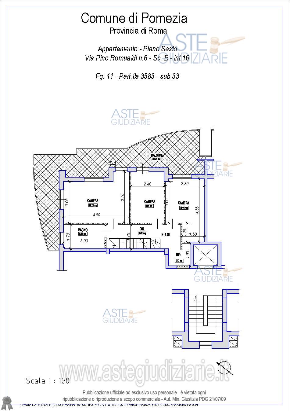
Appartamento Via Pino Romualdi, 6, 00071 Pomezia RM, Italia, 00071 Pomezia (RM)

4,00
153,00
2
0
€ 136.500
Vendita all'asta Senza incanto, con gara telematica asincrona - LOTTO UNICO: Proprietà superficiaria dell’appartamento sito in Comune Pomezia (RM) - Via Pino Romualdi 6, scala B, con annesso box sito al secondo piano interrato, piano S2. Prezzo base € 136.500,00 (offerta minima € 102.375,00). Data inizio operazioni di vendita: 14/07/2026 ore 10:00. Giudice: Anna Luisa Di Serafino. Professionista delegato alla vendita: Avv. Diego Pantaleo - Email "avvocatopantaleo@gmail.com". Custode Giudiziario: Ivg Di Roma Srl Istituto Vendite Giudiziarie - Email "pvp@visiteivgroma.it"; Tel. 06/89569801. Rif. Tribunale di Velletri - Espropriazione immobiliare (cartabia) n. 190/2024

Superficie 153,00 mq
Vani 4,00
Bagni 2
Piano 0

Tipologia di vendita Giudiziaria
Modalità di vendita Asincrona telematica
Termine presentazione offerte 13/07/2026 ore 23:59
Data e ora inizio gara 14/07/2026 ore 10:00
Codice ID astegiudiziarie.it 4334132
4,00
153,00
2
0
€ 136.500

Ti interessa questa vendita?

north_east

Clicca qui per essere indirizzato alla scheda sul sito di provenienza

Bene di astegiudiziarie.it