highlight_off
Riferimento annuncio 289145 info

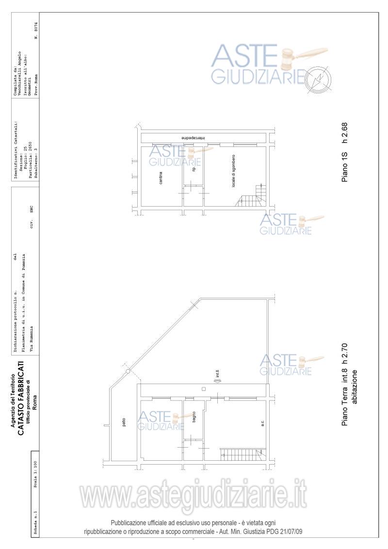
Appartamento Via Rumenia, 00071 Torvaianica RM, Italia, 00071 Pomezia (RM)

5,00
85,00
2
0
€ 107.250
Vendita all'asta Senza incanto, con gara telematica asincrona - LOTTO 1: Bene 1 - Appartamento. Bene 2 - Posto auto. Prezzo base € 107.250,00 (offerta minima € 80.437,50). Data inizio operazioni di vendita: 05/03/2026 ore 10:00. Giudice Dott. Anna Luisa Di Serafino. Professionista delegato alla vendita Avv. Emanuela Santilli. Custode Giudiziario Avv. Emanuela Santilli - Email "emanuelasantilli70@gmail.com"; Cell. 3337452682; Tel. 069634699. Rif. Tribunale di Velletri - Espropriazione immobiliare (cartabia) n. 154/2023

Superficie 85,00 mq
Vani 5,00
Bagni 2
Piano 0

Tipologia di vendita Giudiziaria
Modalità di vendita Asincrona telematica
Termine presentazione offerte 04/03/2026 ore 23:59
Data e ora inizio gara 05/03/2026 ore 10:00
Codice ID astegiudiziarie.it 4315560
5,00
85,00
2
0
€ 107.250

Ti interessa questa vendita?

north_east

Clicca qui per essere indirizzato alla scheda sul sito di provenienza

Bene di astegiudiziarie.it