highlight_off
Riferimento annuncio 255041 info

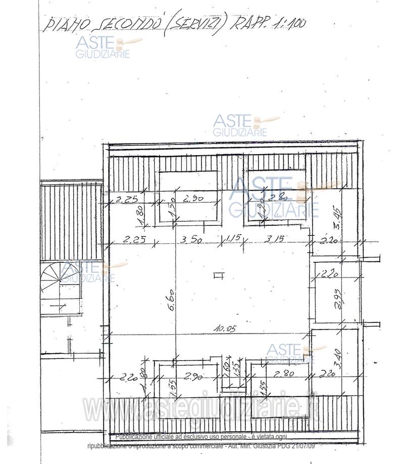
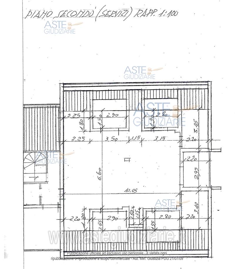
Appartamento Via Campo Ascolano, 20, 00071 Pomezia (RM)

7,50
508,00
1
0
€ 390.000
Vendita all'asta Senza incanto - LOTTO 2: Abitazione al piano primo e secondo - Abitazione al piano terra - Autorimessa al piano interrato. Prezzo base € 390.000,00 (offerta minima € 292.500,00). Data vendita 23/01/2026 ore 09:00. Professionista delegato alla vendita Avv. Cristiana Cetra. Custode Giudiziario Avv. Carolina Mammucari - Email "carolina.mammucari@alice.it". Rif. Tribunale di Velletri - Esecuzione immobiliare post legge 80 n. 509/2006

Superficie 508,00 mq
Vani 7,50
Bagni 1
Piano 0

Tipologia di vendita Giudiziaria
Modalità di vendita Presso il venditore
Termine presentazione offerte 01/01/1900 ore 00:00
Data e ora inizio gara 23/01/2026 ore 09:00
Codice ID astegiudiziarie.it 2799740
7,50
508,00
1
0
€ 390.000

Ti interessa questa vendita?

north_east

Clicca qui per essere indirizzato alla scheda sul sito di provenienza

Bene di astegiudiziarie.it