highlight_off
Riferimento annuncio 97857 info

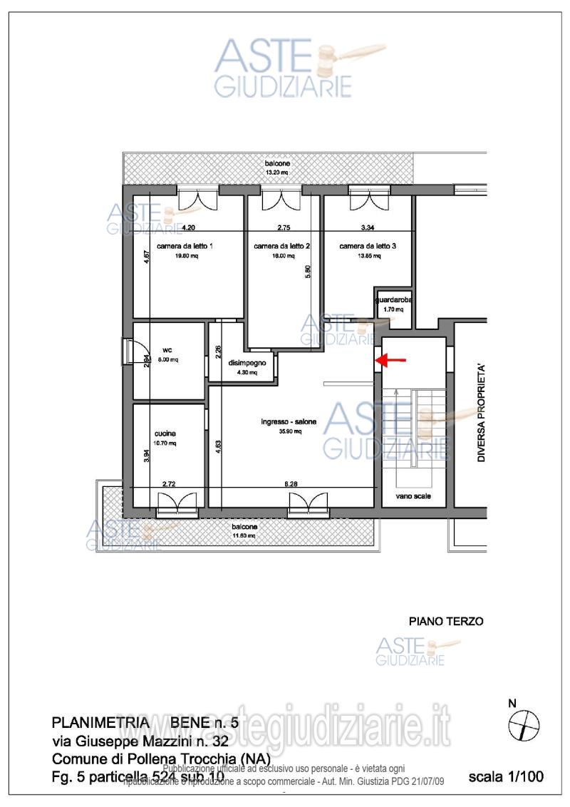
Appartamento VIA GIUSEPPE MAZZINI N.32, 80040 Pollena Trocchia (NA)

6,00
141,00
0
€ 57.463
Vendita all'asta Senza incanto, con gara telematica asincrona - LOTTO 5: LOTTO CINQUE – PIENA PROPRIETA’ DI IMMOBILE UBICATO A POLLENA TROCCHIA (NA) – VIA GIUSEPPE MAZZINI N. 32 – PART. 524 SUB 10, PIANO 3. L’appartamento è localizzato al piano terzo del fabbricato, accessibile dal pianerottolo centrale a servizio di due unità per piano. Dall’ingresso si accede direttamente ad ampio salone, con cucina-pranzo con esposizione verso nord-ovest, con ampio balcone lineare; le camere da letto sono sul lato opposto con esposizione. Prezzo base € 57.463,17 (offerta minima € 43.097,38). Data inizio operazioni di vendita: 25/11/2025 ore 15:30. Giudice Dott. Miriam Valenti. Professionista delegato alla vendita Dott. Enzo Sorvino - Email "enzo_sorvino@fastwebnet.it"; Cell. 3382694153; Tel. 08119575035. Custode Giudiziario Dott. Enzo Sorvino - Email "enzo_sorvino@fastwebnet.it"; Cell. 3382694153; Tel. 08119575035. Rif. Tribunale di Nola - Esecuzione immobiliare post legge 80 n. 300/2019

Superficie 141,00 mq
Vani 6,00
Bagni
Piano 0

Tipologia di vendita Giudiziaria
Modalità di vendita Asincrona telematica
Termine presentazione offerte 24/11/2025 ore 23:59
Data e ora inizio gara 25/11/2025 ore 15:30
Codice ID astegiudiziarie.it 4217757
6,00
141,00
0
€ 57.463

Ti interessa questa vendita?

north_east

Clicca qui per essere indirizzato alla scheda sul sito di provenienza

Bene di astegiudiziarie.it