highlight_off
Riferimento annuncio 305781 info

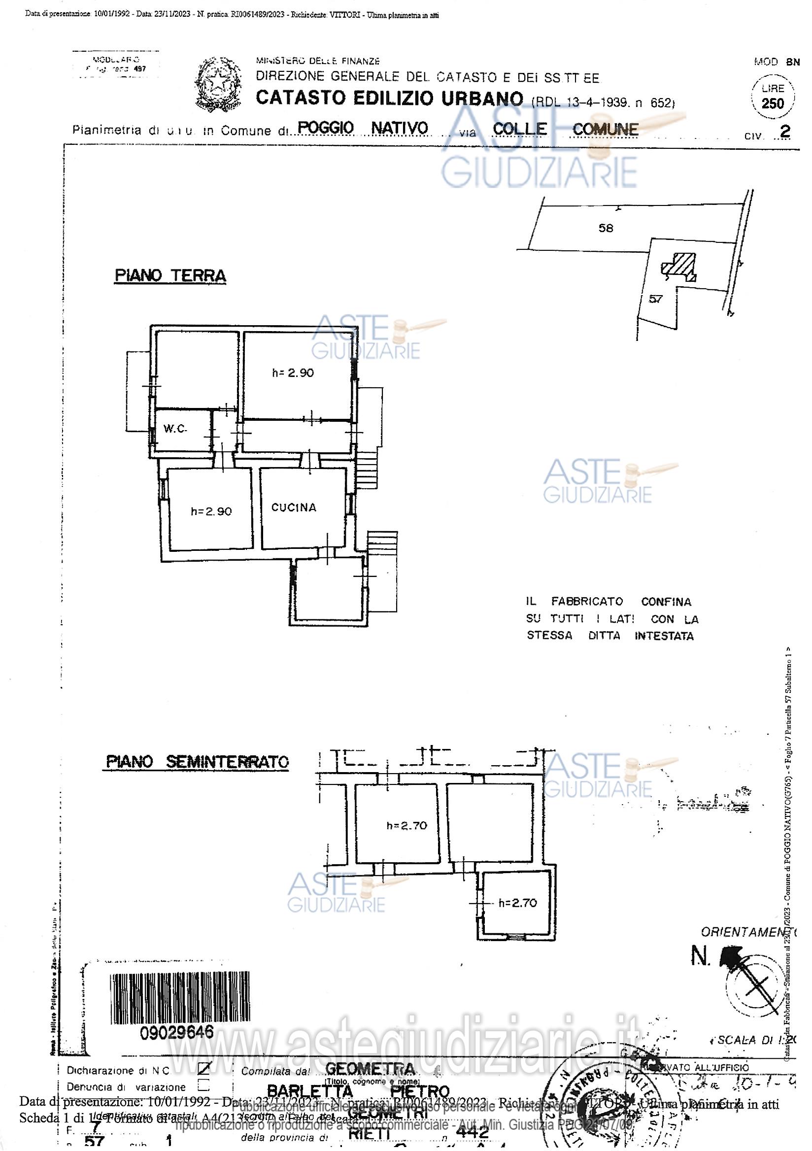
Appartamento Via Colle Comune, 02030 Poggio Nativo RI, Italia, 02030 Poggio Nativo (RI)

6,00
205,00
2
0
€ 93.375
Vendita all'asta Senza incanto, con gara telematica asincrona - LOTTO 1: Compendio immobiliare costituito da abitazione e magazzini con annessi terreni e corte esclusiva. L'abitazione è composta da ingresso, soggiorno, cucina, tre camere da letto e bagno, oltre ad ampio. Prezzo base € 93.375,00 (offerta minima € 70.031,00). Data inizio operazioni di vendita: 09/02/2026 ore 10:00. Giudice Barbara Vicario. Professionista delegato alla vendita Avv. Massimiliano Rosati - Email "avv.mrosati@gmail.com". Custode Giudiziario Avv. Massimiliano Rosati - Email "avv.mrosati@gmail.com". Rif. Tribunale di Rieti - Espropriazione immobiliare (cartabia) n. 61/2023

Superficie 205,00 mq
Vani 6,00
Bagni 2
Piano 0

Tipologia di vendita Giudiziaria
Modalità di vendita Asincrona telematica
Termine presentazione offerte 01/01/1900 ore 00:00
Data e ora inizio gara 09/02/2026 ore 10:00
Codice ID astegiudiziarie.it 4328384
6,00
205,00
2
0
€ 93.375

Ti interessa questa vendita?

north_east

Clicca qui per essere indirizzato alla scheda sul sito di provenienza

Bene di astegiudiziarie.it