highlight_off
Riferimento annuncio 316788 info

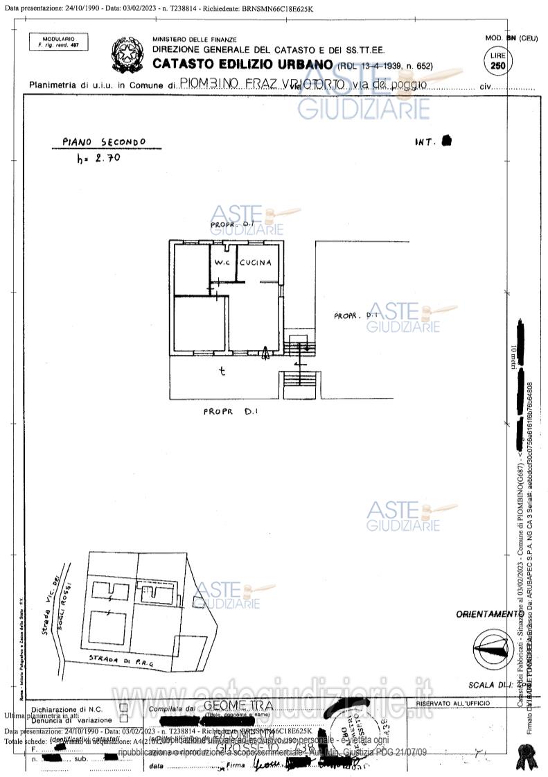
Appartamento Via della Tabella, 13, 57025 Riotorto LI, Italia, 57025 Piombino (LI)

4,00
76,00
1
0
€ 115.740
Vendita all'asta Senza incanto, con gara telematica asincrona - LOTTO UNICO: Appartamento al piano secondo, composto da terrazza, ingresso-soggiorno, cucina, due camere, bagno, ed autorimessa. Prezzo base € 115.740,00 (offerta minima € 86.805,00). Data inizio operazioni di vendita: 16/12/2025 ore 12:00. Giudice Simona Capurso. Professionista delegato alla vendita Avv. Deri Pietro. Custode Giudiziario Avv. Pietro Deri - Email "pietro.deri@studiolegalebiagioniederi.it"; Tel. 0586882261. Rif. Tribunale di Livorno - Esecuzione immobiliare post legge 80 n. 215/2022

Superficie 76,00 mq
Vani 4,00
Bagni 1
Piano 0

Tipologia di vendita Giudiziaria
Modalità di vendita Asincrona telematica
Termine presentazione offerte 15/12/2025 ore 12:00
Data e ora inizio gara 16/12/2025 ore 12:00
Codice ID astegiudiziarie.it 4337482
4,00
76,00
1
0
€ 115.740

Ti interessa questa vendita?

north_east

Clicca qui per essere indirizzato alla scheda sul sito di provenienza

Bene di astegiudiziarie.it