highlight_off
Riferimento annuncio 81324 info

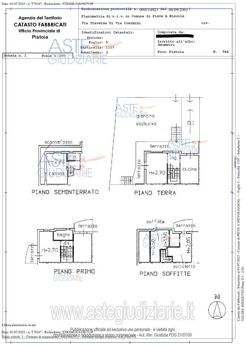
Appartamento Via Don Marino Mori, 51018 Pieve A Nievole PT, Italia, 51018 Pieve a Nievole (PT)

8,00
174,00
1
0
€ 260.000
Vendita all'asta Senza incanto, con gara telematica asincrona - LOTTO UNICO: Terratetto, corredato da giardino ed autorimessa. Prezzo base € 260.000,00 (offerta minima € 195.000,00). Data inizio operazioni di vendita: 06/05/2026 ore 15:00. Giudice Sergio Garofalo. Professionista delegato alla vendita Avv. Emanuela Franchi - Email "e.franchi@avvpatriziorosi.it". Custode Giudiziario Isveg - Email "prenota.pt@isveg.it". Rif. Tribunale di Pistoia - Esecuzione immobiliare post legge 80 n. 89/2019

Superficie 174,00 mq
Vani 8,00
Bagni 1
Piano 0

Tipologia di vendita Giudiziaria
Modalità di vendita Asincrona telematica
Termine presentazione offerte 05/05/2026 ore 12:00
Data e ora inizio gara 06/05/2026 ore 15:00
Codice ID astegiudiziarie.it 4201594
8,00
174,00
1
0
€ 260.000

Ti interessa questa vendita?

north_east

Clicca qui per essere indirizzato alla scheda sul sito di provenienza

Bene di astegiudiziarie.it