highlight_off
Riferimento annuncio 282106 info

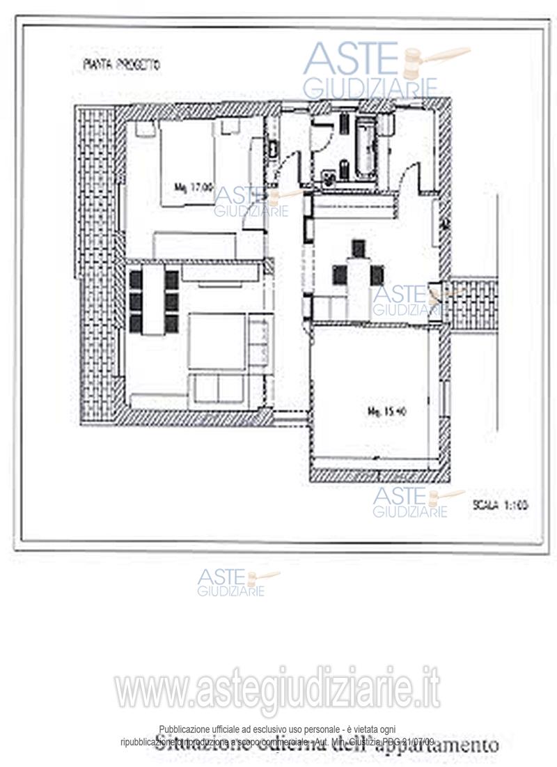
Appartamento Via I Maggio, 32, 85055 Picerno PZ, Italia, 85055 Picerno (PZ)

4,00
387,50
1
0
€ 35.775
Vendita all'asta Senza incanto - LOTTO UNICO: appartamento. Prezzo base € 35.775,00 (offerta minima € 26.832,00). Data vendita 24/04/2026 ore 17:00. Professionista delegato alla vendita Avv. Anna Catale - Email "catale.anna@tiscali.it"; Tel. 3493994279. Custode Giudiziario Avv. Anna Catale - Email "catale.anna@tiscali.it"; Tel. 3493994279. Rif. Tribunale di Potenza - Esecuzione immobiliare post legge 80 n. 140/2011

Superficie 387,50 mq
Vani 4,00
Bagni 1
Piano 0

Tipologia di vendita Giudiziaria
Modalità di vendita Presso il venditore
Termine presentazione offerte 01/01/1900 ore 00:00
Data e ora inizio gara 24/04/2026 ore 17:00
Codice ID astegiudiziarie.it 295439
4,00
387,50
1
0
€ 35.775

Ti interessa questa vendita?

north_east

Clicca qui per essere indirizzato alla scheda sul sito di provenienza

Bene di astegiudiziarie.it