Riferimento annuncio 288083
        
    
    Appartamento Contrada Camitrice, 94015 Piazza Armerina EN, Italia, 94015 Piazza Armerina (EN)
                
                0
            
        
€ 16.875    
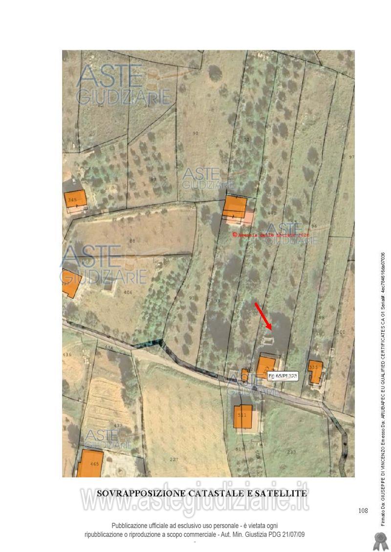
                Vendita all'asta Senza incanto, con gara telematica sincrona mista - LOTTO UNICO:  Immobile in contrada Camitrice destinato ad abitazione vani 4,5 di mq 126 in catasto al fg. 65 p.lla 323 e terreno annesso avente una superficie di mq 3.02 in catasto al fg. 65 p.lla 95. Prezzo base € 16.875,00 (offerta minima € 12.656,25). Data vendita 16/12/2025 ore 10:00. Giudice Dott. Palazzo Davide. Professionista delegato alla vendita Avv. Filippo Mantegna - Email "avv.fili@gmail.com"; Tel. 3397397303. Custode Giudiziario Avv. Filippo Mantegna - Email "avv.fili@gmail.com"; Tel. 3397397303.  Rif. Tribunale di Enna - Espropriazione immobiliare (cartabia) n. 71/2023
            
   
| Superficie | mq | 
|---|---|
| Vani | |
| Bagni | |
| Piano | 0 | 
| Tipologia di vendita | Giudiziaria | 
|---|---|
| Modalità di vendita | Sincrona mista | 
| Termine presentazione offerte | 01/01/1900 ore 00:00 | 
| Data e ora inizio gara | 16/12/2025 ore 10:00 | 
 
                         
                         
                         
                         
                         
                         
                         
                         
                         
                         
                         
                         
                         
                         
                         
                         
                         
                         
                         
                         
                         
                        