highlight_off
Riferimento annuncio 283434 info

Appartamento Via Santissima Incoronata, 85020 Pescopagano PZ, Italia, 85020 Pescopagano (PZ)

8,00
148,00
0
€ 12.266
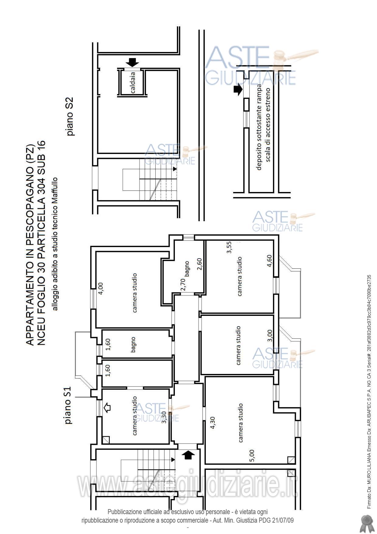
Vendita all'asta Senza incanto - LOTTO 2: Piena ed intera proprietà quota 1/2 nel comune di Pescopagano (PZ) alla via Santissima Incoronata int. 7, S1-S2, abitazione riportata in catasto fabbricati al foglio 30 p.lla 304 sub. 16, cat. A/2, cl. 4, vani 8, mq 148,00. Prezzo base € 12.266,00 (offerta minima € 9.200,00). Data vendita 20/02/2026 ore 11:00. Professionista delegato alla vendita Avv. Monica Dea De Luca - Email "avv.monicadeadeluca@gmail.com"; Cell. 3385971550; Tel. 0971287426. Custode Giudiziario Avv. Monica Dea De Luca - Email "avv.monicadeadeluca@gmail.com"; Cell. 3385971550; Tel. 0971287426. Rif. Tribunale di Potenza - Esecuzione immobiliare post legge 80 n. 42/2021

Superficie 148,00 mq
Vani 8,00
Bagni
Piano 0

Tipologia di vendita Giudiziaria
Modalità di vendita Presso il venditore
Termine presentazione offerte 01/01/1900 ore 00:00
Data e ora inizio gara 20/02/2026 ore 11:00
Codice ID astegiudiziarie.it 4311125
8,00
148,00
0
€ 12.266

Ti interessa questa vendita?

north_east

Clicca qui per essere indirizzato alla scheda sul sito di provenienza

Bene di astegiudiziarie.it