Riferimento annuncio 314475
        
    
    Appartamento Via degli Ammannati, 5, 51017 Pescia PT, Italia, 51017 Pescia (PT)
                
                6,00
            
            
                
                107,00
            
            
                
                0
            
        
€ 115.000    
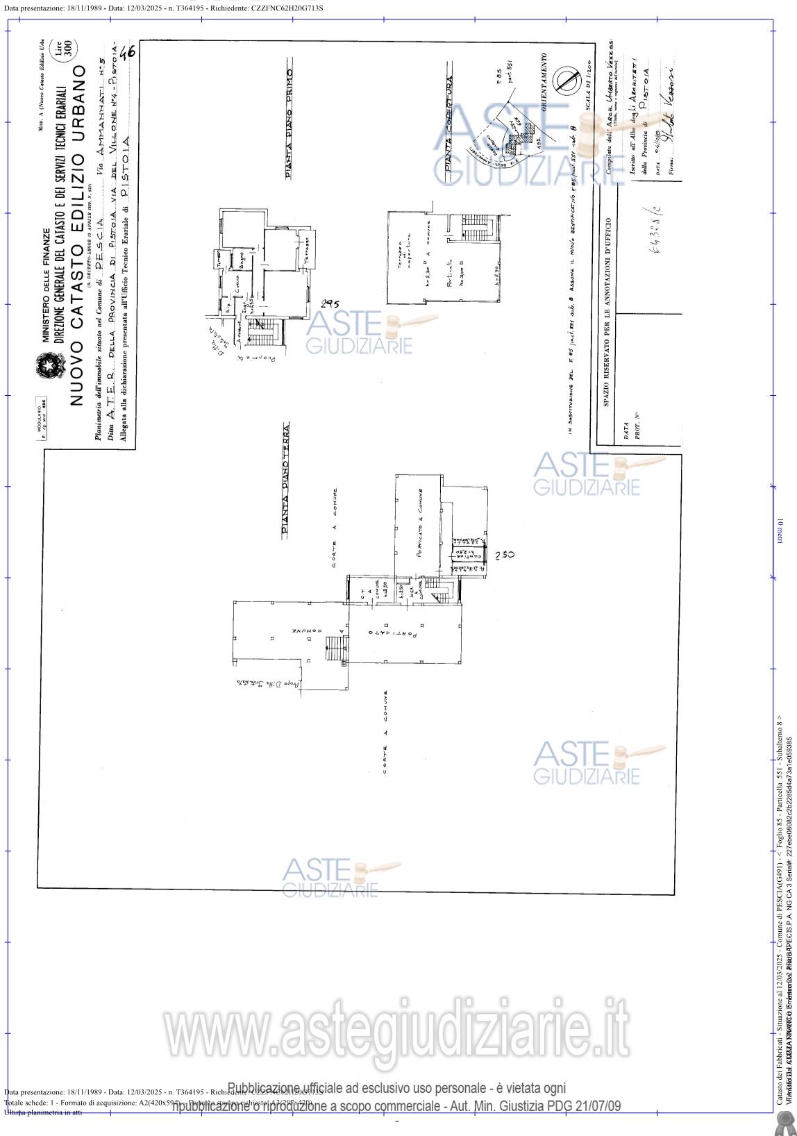
                Vendita all'asta Senza incanto, con gara telematica asincrona - LOTTO UNICO:  Diritti di piena proprietà su appartamento per civile abitazione posto al piano primo di un piùampio complesso condominiale, composto da ingresso, disimpegno, ripostiglio, camerina,bagno, due camere matrimoniali, soggiorno con angolo cottura e due terrazzi, con annessovano cantina esclusivo a piano terra. Prezzo base € 115.000,00 (offerta minima € 86.250,00). Data inizio operazioni di vendita: 14/01/2026 ore 10:30. Professionista delegato alla vendita Avv. Roberta Bechi.  Rif. Tribunale di Pistoia - Espropriazione immobiliare (cartabia) n. 20/2025
            
   
| Superficie | 107,00 mq | 
|---|---|
| Vani | 6,00 | 
| Bagni | |
| Piano | 0 | 
| Tipologia di vendita | Giudiziaria | 
|---|---|
| Modalità di vendita | Asincrona telematica | 
| Termine presentazione offerte | 13/01/2026 ore 12:00 | 
| Data e ora inizio gara | 14/01/2026 ore 10:30 | 
 
                         
                         
                         
                         
                         
                         
                         
                         
                         
                         
                         
                         
                         
                         
                         
                         
                         
                         
                         
                         
                         
                         
                         
                         
                         
                         
                         
                        