highlight_off
Riferimento annuncio 316261 info

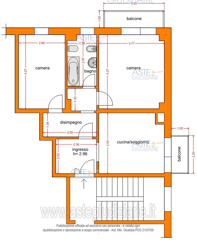
Appartamento Via Tavo, 79, 65128 Pescara PE, Italia, 65100 Pescara (PE)

4,00
68,00
0
€ 56.318
Vendita all'asta Senza incanto, con gara telematica asincrona - LOTTO 2: Appartamento ubicato a Pescara (PE) - VIA TAVO n.79, piano 1 sub 9. Prezzo base € 56.317,50 (offerta minima € 42.238,12). Data inizio operazioni di vendita: 20/01/2026 ore 09:30. Custode Giudiziario Avv. Roberta Colitti - Email "roberta.colitti@tin.it"; Cell. 3294276887; Tel. 0854213233. Curatore Avv. Roberta Colitti. Rif. Tribunale di Pescara - Volontaria giurisdizione n. 1419/2019

Superficie 68,00 mq
Vani 4,00
Bagni
Piano 0

Tipologia di vendita Giudiziaria
Modalità di vendita Asincrona telematica
Termine presentazione offerte 19/01/2026 ore 12:00
Data e ora inizio gara 20/01/2026 ore 09:30
Codice ID astegiudiziarie.it 4337156
4,00
68,00
0
€ 56.318

Ti interessa questa vendita?

north_east

Clicca qui per essere indirizzato alla scheda sul sito di provenienza

Bene di astegiudiziarie.it