highlight_off
Riferimento annuncio 306260 info

Appartamento Via Italo Giovannucci, 3, 65125 Pescara PE, Italia, 65100 Pescara (PE)

8,00
171,00
0
€ 190.755
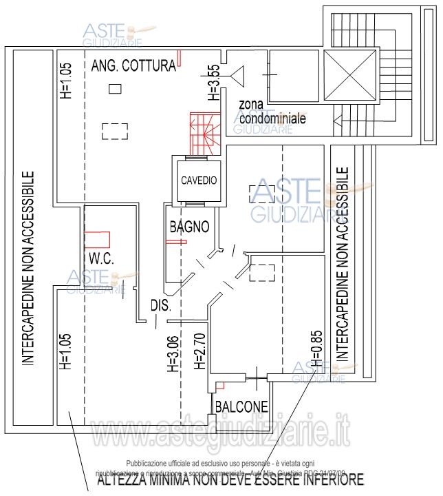
Vendita all'asta Senza incanto, con gara telematica asincrona - LOTTO UNICO: Appartamento che si sviluppa su 2 piani ubicati al piano terzo e quarto di un edificio di maggiore consistenza e un garage pertinenziale al piano terra. Prezzo base € 190.755,00 (offerta minima € 143.066,25). Data inizio operazioni di vendita: 13/01/2026 ore 12:00. Giudice Dott. Daniela Angelozzi. Professionista delegato alla vendita Avv. Agostino Barbati. Custode Giudiziario Avv. Agostino Barbati - Email "studiobarbatitarquini@gmail.com"; Cell. 3384960320. Rif. Tribunale di Pescara - Espropriazione immobiliare (cartabia) n. 175/2023

Superficie 171,00 mq
Vani 8,00
Bagni
Piano 0

Tipologia di vendita Giudiziaria
Modalità di vendita Asincrona telematica
Termine presentazione offerte 12/01/2026 ore 12:00
Data e ora inizio gara 13/01/2026 ore 12:00
Codice ID astegiudiziarie.it 4328711
8,00
171,00
0
€ 190.755

Ti interessa questa vendita?

north_east

Clicca qui per essere indirizzato alla scheda sul sito di provenienza

Bene di astegiudiziarie.it