highlight_off
Riferimento annuncio 302027 info

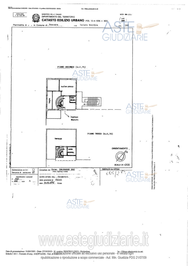
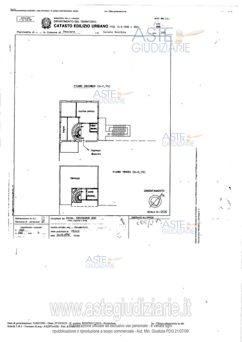
Appartamento Via Salara Vecchia, 158, 65129 Pescara PE, Italia, 65100 Pescara (PE)

4,50
990,70
0
€ 362.546
Vendita all'asta Senza incanto, con gara telematica asincrona - LOTTO 4: Porzione di capannone con corte comune - Abitazione di tipo economico posta al piano secondo. Prezzo base € 362.545,50 (offerta minima € 271.909,13). Data inizio operazioni di vendita: 23/10/2025 ore 12:00. Giudice Dott. Federica Colantonio. Curatore Avv. Antonella Santeusanio. Rif. Tribunale di Pescara - Fallimentare (nuovo rito) n. 18/2022

Superficie 990,70 mq
Vani 4,50
Bagni
Piano 0

Tipologia di vendita Giudiziaria
Modalità di vendita Asincrona telematica
Termine presentazione offerte 22/10/2025 ore 12:00
Data e ora inizio gara 23/10/2025 ore 12:00
Codice ID astegiudiziarie.it 4325385
4,50
990,70
0
€ 362.546

Ti interessa questa vendita?

north_east

Clicca qui per essere indirizzato alla scheda sul sito di provenienza

Bene di astegiudiziarie.it