highlight_off
Riferimento annuncio 251137 info

Appartamento Strada per Sestino, 8/a, 47864 Pennabilli (RN)

4,50
103,00
0
€ 22.623
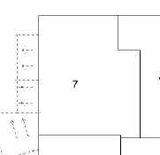
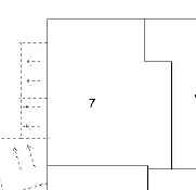
Vendita all'asta Senza incanto, con gara telematica asincrona - LOTTO 4: Piena proprietà di unità immobiliare ad uso civile abitazione in buono stato diconservazione e composto da ampia zona giorno, due camere e un bagno sito in Pennabilli (RN) – Strada per Sestino n. 8/a. Prezzo base € 22.623,04 (offerta minima € 16.967,28). Data inizio operazioni di vendita: 22/04/2026 ore 15:00. Giudice Maria Carla Corvetta. Professionista delegato alla vendita Avv. Kristel Torri - Email "kristeltorri@libero.it"; Cell. 3397049379. Custode Giudiziario Avv. Kristel Torri - Email "kristeltorri@libero.it"; Cell. 3397049379. Rif. Tribunale di Rimini - Esecuzione immobiliare post legge 80 n. 96/2020

Superficie 103,00 mq
Vani 4,50
Bagni
Piano 0

Tipologia di vendita Giudiziaria
Modalità di vendita Asincrona telematica
Termine presentazione offerte 01/01/1900 ore 00:00
Data e ora inizio gara 22/04/2026 ore 15:00
Codice ID astegiudiziarie.it 4285623
4,50
103,00
0
€ 22.623

Ti interessa questa vendita?

north_east

Clicca qui per essere indirizzato alla scheda sul sito di provenienza

Bene di astegiudiziarie.it