highlight_off
Riferimento annuncio 223901 info

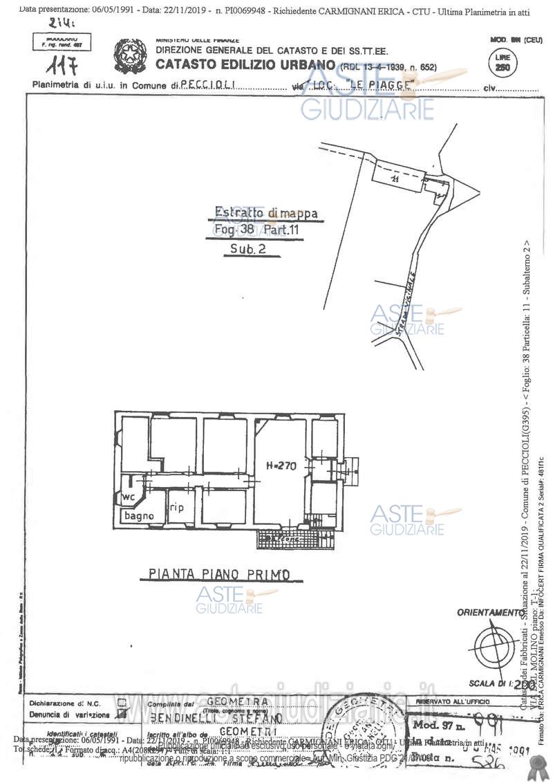
Appartamento Via del Molino, 54 - loc. Le Piagge, 56037 Peccioli (PI)

8,00
156,81
0
€ 58.000
Vendita all'asta Senza incanto, con gara telematica asincrona - LOTTO 2: In Peccioli, località Le Piagge, via del Molino numero civico 54, piena proprietà dell’intero di porzione abitativa, posta al piano primo di un più ampio fabbricato rurale, con accesso diretto dalla pubblica via (ex strada vicinale delle Piagge) mediante cortile esterno esclusivo (prospetto ovest). Prezzo base € 58.000,00 (offerta minima € 43.500,00). Data inizio operazioni di vendita: 20/05/2026 ore 14:00. Giudice Dott. Marco Zinna. Professionista delegato alla vendita Not. Vittorio Di Lella. Custode Giudiziario Dott. Cosimo Erriquez - Email "prenotazionipisa@astagiudiziaria.com". Rif. Tribunale di Pisa - Esecuzione immobiliare post legge 80 n. 195/2019

Superficie 156,81 mq
Vani 8,00
Bagni
Piano 0

Tipologia di vendita Giudiziaria
Modalità di vendita Asincrona telematica
Termine presentazione offerte 01/01/1900 ore 00:00
Data e ora inizio gara 20/05/2026 ore 14:00
Codice ID astegiudiziarie.it 4269775
8,00
156,81
0
€ 58.000

Ti interessa questa vendita?

north_east

Clicca qui per essere indirizzato alla scheda sul sito di provenienza

Bene di astegiudiziarie.it