highlight_off
Riferimento annuncio 319344 info

Appartamento Via Giardini, 200, 41026 Pavullo nel Frignano (MO)

6,50
188,00
1
7
€ 35.500
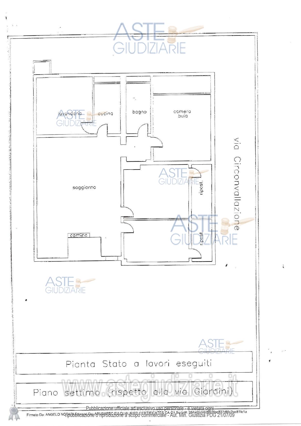
Vendita all'asta Senza incanto, con gara telematica asincrona - LOTTO UNICO: Piena e intera proprietà di una porzione immobiliare residenziale parte di un più ampio complesso immobiliare posto nel centro di Pavullo nel Frignano MO, situato al 7 piano del condominio “Domus Giardini” con accesso da Via Giardini nr. 200, scala D, composta da un ingresso soggiorno, due camere una cucina con annessa lavanderia, un locale igienico, una stanza priva di finestre, illuminata solo da un piccolo lucernaio, e tre piccoli ripostigli con altezza media di cm. 105 (min. cm 85 max cm. 125). Prezzo base € 35.500,00 (offerta minima € 26.625,00). Data inizio operazioni di vendita: 08/01/2026 ore 12:30. Professionista delegato alla vendita Avv. Leonardo Giardomentrone - Email "avv.leonardogiardomentrone@gmail.com"; Cell. 3393674358. Custode Giudiziario Alex Manelli - Email "visiteimmobili@ivgmodena.it". Rif. Tribunale di Modena - Espropriazione immobiliare (cartabia) n. 84/2024

Superficie 188,00 mq
Vani 6,50
Bagni 1
Piano 7

Tipologia di vendita Giudiziaria
Modalità di vendita Asincrona telematica
Termine presentazione offerte 01/01/1900 ore 00:00
Data e ora inizio gara 08/01/2026 ore 12:30
Codice ID astegiudiziarie.it 4339426
6,50
188,00
1
7
€ 35.500

Ti interessa questa vendita?

north_east

Clicca qui per essere indirizzato alla scheda sul sito di provenienza

Bene di astegiudiziarie.it