highlight_off
Riferimento annuncio 332263 info

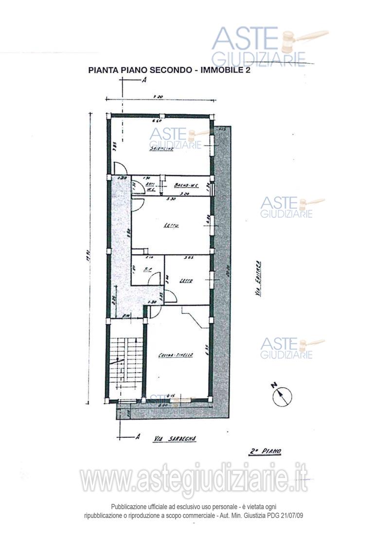
Appartamento VIA SARDEGNA N.1, 95047 Paternò (CT)

2,00
109,20
0
€ 60.500
Vendita all'asta Senza incanto, con gara telematica sincrona - LOTTO 2: LOTTO 2) Appartamento sito in Paternò, Via Sardegna n. 1, posto al piano secondo, composto due vani, un salone, oltre cucina, disimpegno, ripostiglio, antibagno e wc. Prezzo base € 60.500,00 (offerta minima € 45.375,00). Data vendita 01/07/2026 ore 10:00. Professionista delegato alla vendita Avv. Daniela Furia - Email "daniela.furia@tiscali.it"; Tel. 095388875. Custode Giudiziario Avv. Daniela Furia - Email "daniela.furia@tiscali.it"; Tel. 095388875. Rif. Tribunale di Catania - Esecuzione immobiliare post legge 80 n. 348/2021

Superficie 109,20 mq
Vani 2,00
Bagni
Piano 0

Tipologia di vendita Giudiziaria
Modalità di vendita Sincrona telematica
Termine presentazione offerte 01/01/1900 ore 00:00
Data e ora inizio gara 01/07/2026 ore 10:00
Codice ID astegiudiziarie.it 4349849
2,00
109,20
0
€ 60.500

Ti interessa questa vendita?

north_east

Clicca qui per essere indirizzato alla scheda sul sito di provenienza

Bene di astegiudiziarie.it