highlight_off
Riferimento annuncio 302713 info

Appartamento Via Sant'Agostino, 6, 95124 Catania CT, Italia, 95047 Paternò (CT)

6,50
178,21
1
0
€ 57.750
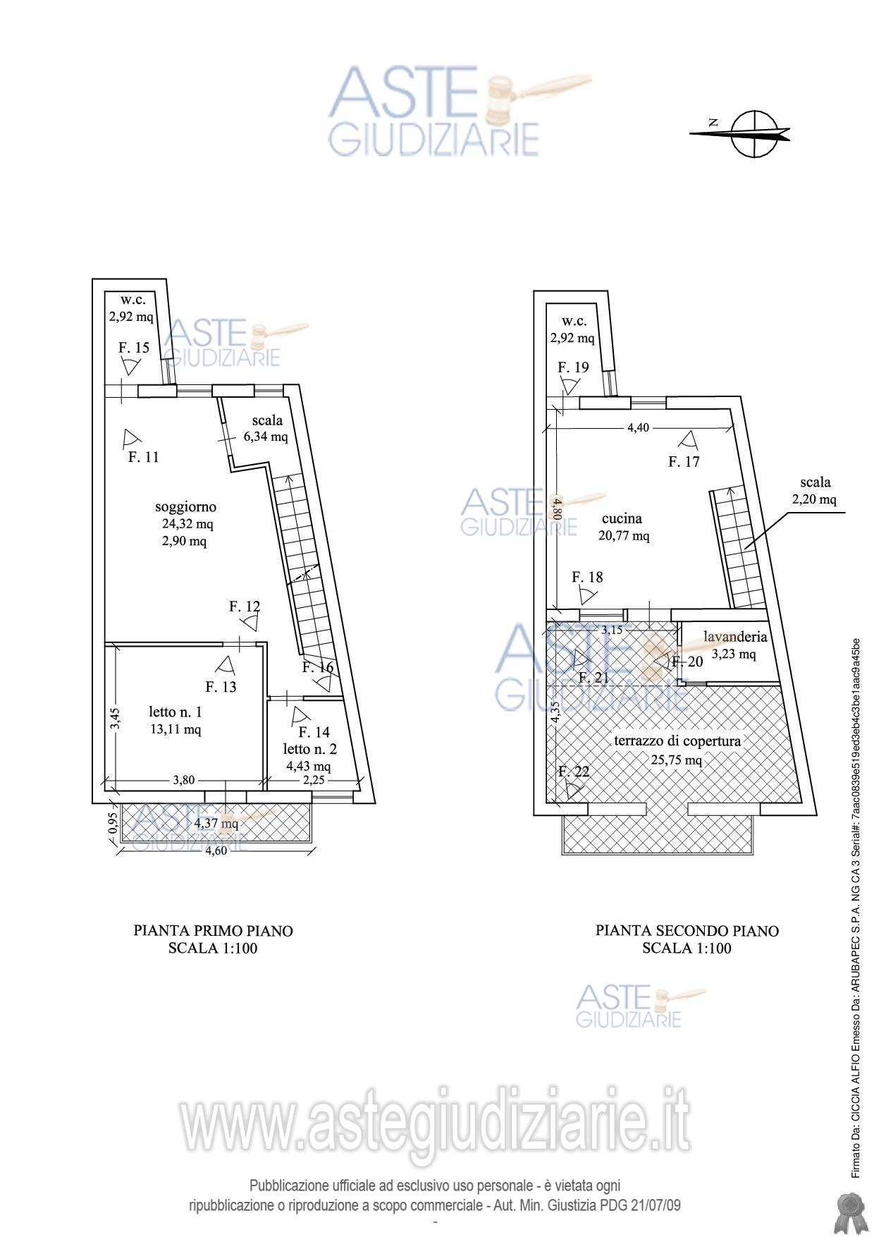
Vendita all'asta Senza incanto, con gara telematica sincrona mista - LOTTO UNICO: Fabbricato sito in Paternò (CT), Via Sant’Agostino nn. 6-8, posto al piano terra e primo oltre terrazza, avente superficie commerciale complessiva di mq. 178,21 c.ca; censito al C.F. del detto comune al Foglio 60, Particella 6486, Sub. 3, Categ. A/3, Classe 5, consistenza vani 6,5, r.c. € 469,98. Prezzo base € 57.750,00 (offerta minima € 43.313,00). Data vendita 22/10/2025 ore 16:00. Professionista delegato alla vendita Avv. Federica Maria Macrì - Email "visite@aavg.it"; Tel. 0952163386. Custode Giudiziario Avv. Federica Maria Macrì - Email "visite@aavg.it"; Tel. 0952163386. Rif. Tribunale di Catania - Esecuzione immobiliare post legge 80 n. 604/2020

Superficie 178,21 mq
Vani 6,50
Bagni 1
Piano 0

Tipologia di vendita Giudiziaria
Modalità di vendita Sincrona mista
Termine presentazione offerte 01/01/1900 ore 00:00
Data e ora inizio gara 22/10/2025 ore 16:00
Codice ID astegiudiziarie.it 4325940
6,50
178,21
1
0
€ 57.750

Ti interessa questa vendita?

north_east

Clicca qui per essere indirizzato alla scheda sul sito di provenienza

Bene di astegiudiziarie.it