highlight_off
Riferimento annuncio 323078 info

Appartamento contrada San Giuseppe, 90047 Partinico (PA)

6,00
82,00
1
0
€ 49.725
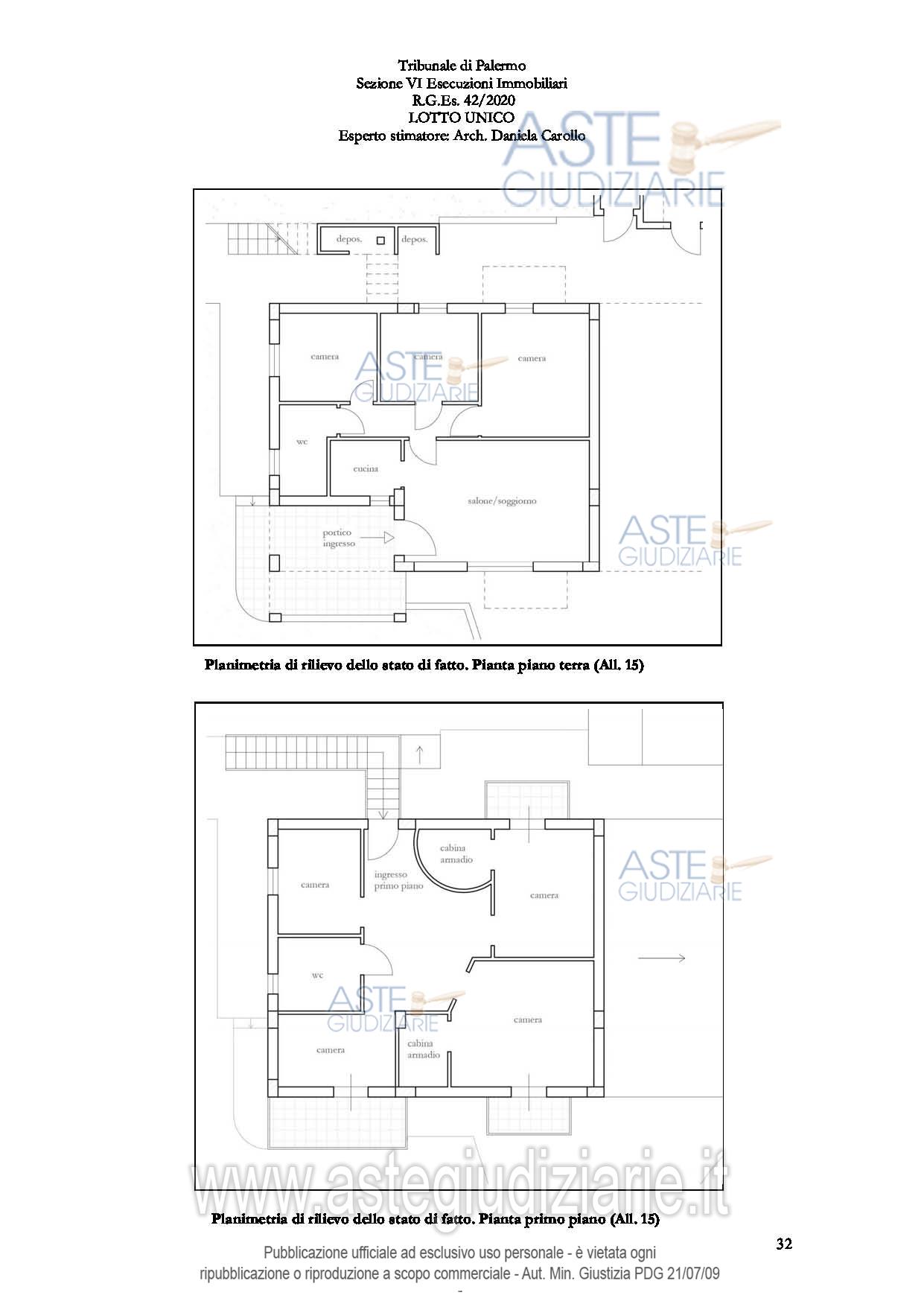
Vendita all'asta Senza incanto, con gara telematica sincrona mista - LOTTO UNICO: Abitazione in villino, censita al C.F. del Comune di Partinico, al fg. 17, p.lla 127, cat. catastale A/7, consistenza 6 vani, superficie catastale totale mq 82, piano terra e primo piano, con terreno di pertinenza circostante. Prezzo base € 49.725,00 (offerta minima € 37.294,00). Data vendita 19/06/2026 ore 10:00. Professionista delegato alla vendita Avv. Cristina Bonomonte - Email "segreteria.bcavvocati@gmail.com"; Tel. 0917840893. Custode Giudiziario Avv. Cristina Bonomonte - Email "segreteria.bcavvocati@gmail.com"; Tel. 0917840893. Rif. Tribunale di Palermo - Esecuzione immobiliare n. 42/2020

Superficie 82,00 mq
Vani 6,00
Bagni 1
Piano 0

Tipologia di vendita Giudiziaria
Modalità di vendita Sincrona mista
Termine presentazione offerte 01/01/1900 ore 00:00
Data e ora inizio gara 19/06/2026 ore 10:00
Codice ID astegiudiziarie.it 4342621
6,00
82,00
1
0
€ 49.725

Ti interessa questa vendita?

north_east

Clicca qui per essere indirizzato alla scheda sul sito di provenienza

Bene di astegiudiziarie.it