Riferimento annuncio 275990
        
    
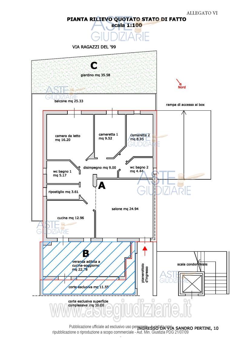
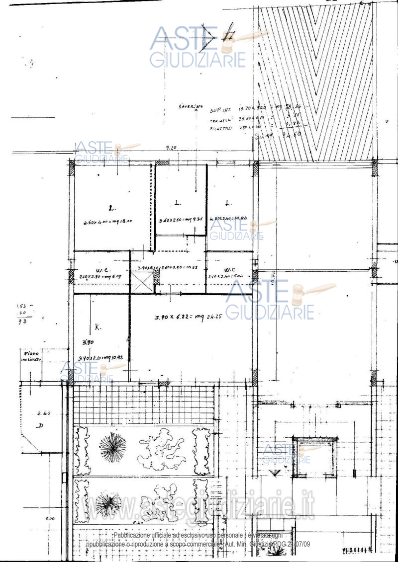
    Appartamento Via Sandro Pertini n. 10, 90047 Partinico (PA)
                
                0
            
        
€ 22.562    
                Vendita all'asta Senza incanto, con gara telematica sincrona mista - LOTTO UNICO:   piena proprietà di un appartamento per civile abitazione, sito a Partinico (PA) in Via Sandro Pertini n. 10, piano terra, scala A, interno 2, identificato al N.C.E.U. del Comune di Partinico al foglio 40, particella 3368, subalterno 10, categoria A/2 e del posto auto in garage sito a Partinico con accesso da Via da denominare oggi via Ragazzi del ’99, piano interrato S1, scala A, identificato al N.C.E.U. del Comune di Partinico nel foglio 40, particella 3368, subalterno 32, categoria C/6, . Prezzo base € 22.561,74 (offerta minima € 16.921,31). Data vendita 06/02/2026 ore 11:00. Professionista delegato alla vendita Avv. Giovanni Rizzo - Email "giovanni_rizzo@hotmail.it"; Tel. 0917910068. Custode Giudiziario  Avv. Giovanni Rizzo - Email "giovanni_rizzo@hotmail.it"; Tel. 0917910068.  Rif. Tribunale di Palermo - Esecuzione immobiliare post legge 80 n. 293/2022
            
   
| Superficie | mq | 
|---|---|
| Vani | |
| Bagni | |
| Piano | 0 | 
| Tipologia di vendita | Giudiziaria | 
|---|---|
| Modalità di vendita | Sincrona mista | 
| Termine presentazione offerte | 01/01/1900 ore 00:00 | 
| Data e ora inizio gara | 06/02/2026 ore 11:00 | 
 
                         
                         
                         
                         
                         
                         
                         
                         
                         
                         
                         
                         
                         
                         
                         
                         
                         
                         
                         
                         
                         
                         
                         
                        