highlight_off
Riferimento annuncio 229707 info

Appartamento via Palermo n. 158, 91028 Partanna (TP)

8,00
214,00
0
€ 42.496
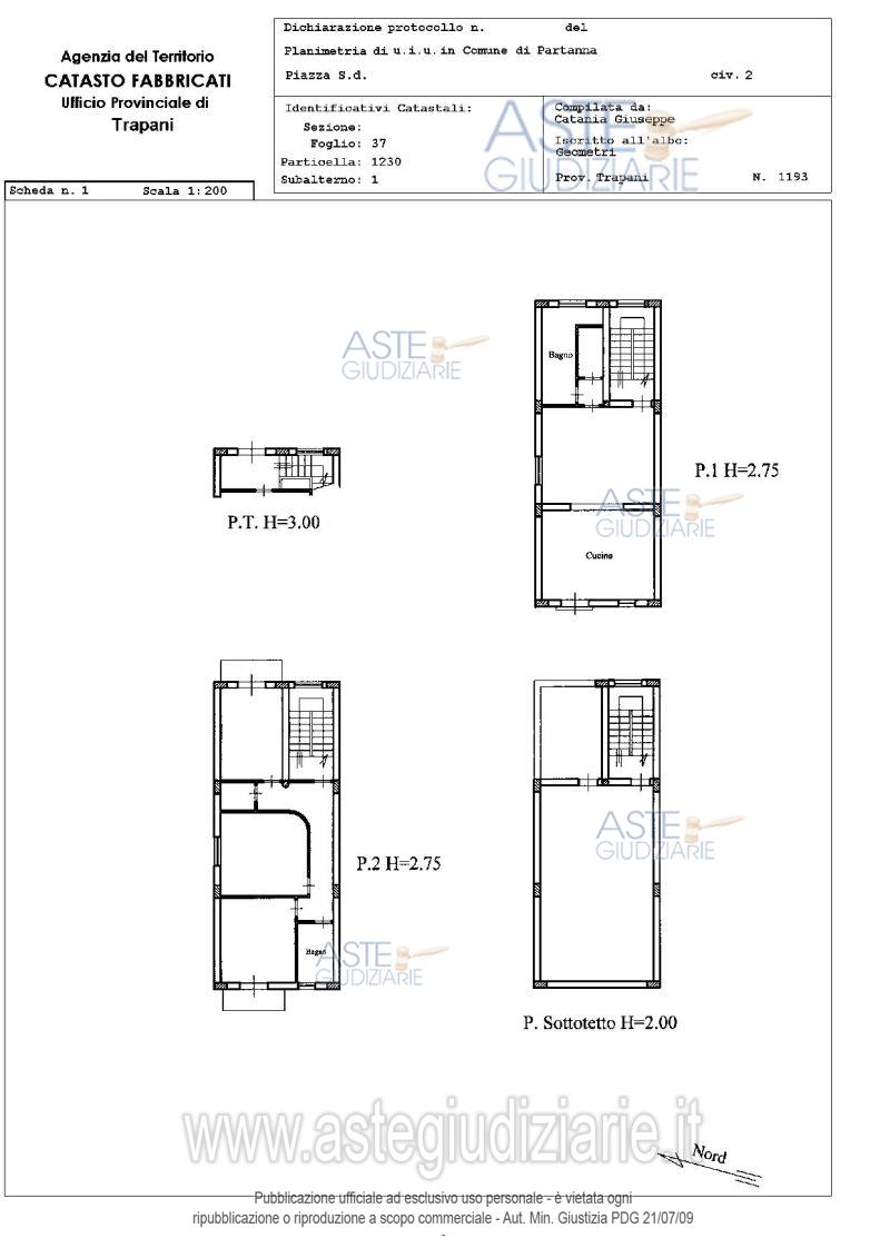
Vendita all'asta Senza incanto, con gara telematica asincrona - LOTTO 2: Appartamento di civile abitazione distribuito tra piano terra, primo, secondo e terzo facente parte di un edificio con accesso da slargo senza denominazione (civico n. 2) del Comune di Partanna, di recente realizzazione e non di lusso, così costituito: androne scala al piano terra; soggiorno, cucina, ripostiglio e w.c. al piano primo; disimpegno, due stanze da letto, ripostiglio, stanza armadi e bagno al piano secondo;cucina, ripostiglio, bagno e terrazzino al piano sottotetto. Prezzo base € 42.496,00 (offerta minima € 31.872,00). Data inizio operazioni di vendita: 11/11/2025 ore 16:00. Professionista delegato alla vendita Avv. Salvatore Roberto - Email "salvinoroberto@gmail.com"; Tel. 092526944. Custode Giudiziario Avv. Salvatore Roberto - Email "salvinoroberto@gmail.com"; Tel. 092526944. Rif. Tribunale di Sciacca - Esecuzione immobiliare post legge 80 n. 58/2018

Superficie 214,00 mq
Vani 8,00
Bagni
Piano 0

Tipologia di vendita Giudiziaria
Modalità di vendita Asincrona telematica
Termine presentazione offerte 01/01/1900 ore 00:00
Data e ora inizio gara 11/11/2025 ore 16:00
Codice ID astegiudiziarie.it 4275139
8,00
214,00
0
€ 42.496

Ti interessa questa vendita?

north_east

Clicca qui per essere indirizzato alla scheda sul sito di provenienza

Bene di astegiudiziarie.it