highlight_off
Riferimento annuncio 132016 info

Appartamento Via Benedetto Croce, 91028 Partanna TP, Italia, 91028 Partanna (TP)

8,50
175,00
0
€ 23.273
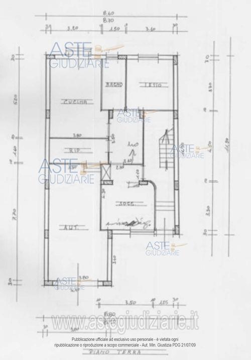
Vendita all'asta Senza incanto, con gara telematica asincrona - LOTTO UNICO: Fabbricato urbano a due elevazioni fuori terra, sito in Partanna nella via Benedetto Croce, composto da un’unità immobiliare della consistenza catastale di vani quattro e mezzo e annesso vano garage della superficie catastale di metri quadrati ventotto (mq. 28) al piano terra e da altra unità immobiliare della consistenza catastale di vani cinque a primo piano, con area libera soprastante. Prezzo base € 23.273,47 (offerta minima € 17.430,10). Data inizio operazioni di vendita: 12/05/2026 ore 17:00. In caso di più offerte valide si procederà a gara che inizierà il 12/05/2026 ore 17:00 e terminerà il 13/05/2026 ore 15:00. Professionista delegato alla vendita: Avv. Agata Libassi - Email "legale.avvocatial@gmail.com"; Cell. 349/8734551. Custode Giudiziario: Avv. Agata Libassi - Email "legale.avvocatial@gmail.com"; Cell. 349/8734551. Rif. Tribunale di Sciacca - Esecuzione immobiliare post legge 80 n. 52/2015

Superficie 175,00 mq
Vani 8,50
Bagni
Piano 0

Tipologia di vendita Giudiziaria
Modalità di vendita Asincrona telematica
Termine presentazione offerte 11/05/2026 ore 12:00
Data e ora inizio gara 12/05/2026 ore 17:00
Codice ID astegiudiziarie.it 396908
8,50
175,00
0
€ 23.273

Ti interessa questa vendita?

north_east

Clicca qui per essere indirizzato alla scheda sul sito di provenienza

Bene di astegiudiziarie.it