highlight_off
Riferimento annuncio 310669 info

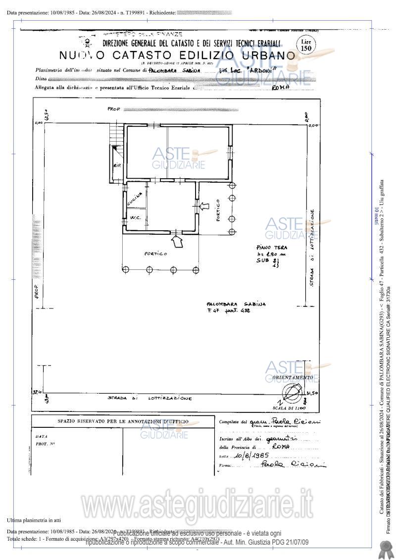
Appartamento Str. degli Ardoni, 20, 00018 Palombara Sabina RM, Italia, 00018 Palombara Sabina (RM)

0
€ 138.470
Vendita all'asta Senza incanto, con gara telematica asincrona - LOTTO UNICO: Appartamento ubicato a Palombara Sabina (RM) - STRADA DEGLI ARDONI n. 20, edificio Unico, piano T Identificato al catasto Fabbricati - Fg. 47, Part. 432, Sub. 1, Categoria A4, Graffato Sub 2. L'immobile viene posto in vendita per il diritto di Proprietà (1/1). Prezzo base € 138.470,00 (offerta minima € 103.852,50). Data inizio operazioni di vendita: 28/10/2025 ore 15:00. Professionista delegato alla vendita Avv. Marcello Bernardini - Email "avvmarcellobernardini@gmail.com"; Cell. 3487005514. Custode Giudiziario Ivg Di Roma - Email "pvp@visiteivgroma.it"; Tel. 0689569801. Rif. Tribunale di Tivoli - Espropriazione immobiliare (cartabia) n. 234/2024

Superficie mq
Vani
Bagni
Piano 0

Tipologia di vendita Giudiziaria
Modalità di vendita Asincrona telematica
Termine presentazione offerte 27/10/2025 ore 23:59
Data e ora inizio gara 28/10/2025 ore 15:00
Codice ID astegiudiziarie.it 4332263
0
€ 138.470

Ti interessa questa vendita?

north_east

Clicca qui per essere indirizzato alla scheda sul sito di provenienza

Bene di astegiudiziarie.it