highlight_off
Riferimento annuncio 260114 info

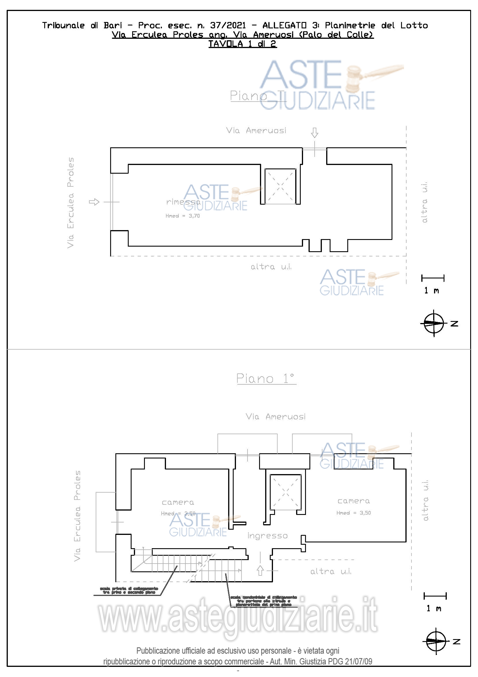
Appartamento Via Erculea Proles ang. Via Ameruosi, 70027 Palo del Colle (BA)

3,50
99,00
1
€ 41.152
Vendita all'asta Senza incanto, con gara telematica asincrona - LOTTO UNICO: Il lotto è costituito da una palazzina formata da tre beni : Appartamento a piano 1-2, e n.2 rimesse a piano terra,. Prezzo base € 41.152,36 (offerta minima € 32.921,81). Data inizio operazioni di vendita: 20/11/2025 ore 15:30. Giudice Dott. Marina Cavallo. Professionista delegato alla vendita Avv. Maria Liso - Email "avvmarialiso@libero.it"; Tel. 0803212828. Custode Giudiziario Avv. Maria Liso - Email "avvmarialiso@libero.it". Rif. Tribunale di Bari - Esecuzione immobiliare post legge 80 n. 37/2021

Superficie 99,00 mq
Vani 3,50
Bagni
Piano 1

Tipologia di vendita Giudiziaria
Modalità di vendita Asincrona telematica
Termine presentazione offerte 01/01/1900 ore 00:00
Data e ora inizio gara 20/11/2025 ore 15:30
Codice ID astegiudiziarie.it 4294081
3,50
99,00
1
€ 41.152

Ti interessa questa vendita?

north_east

Clicca qui per essere indirizzato alla scheda sul sito di provenienza

Bene di astegiudiziarie.it