Riferimento annuncio 314452
        
    
    Appartamento Via Pablo Neruda, 14, 92044 Palma di Montechiaro (AG)
                
                0
            
        
€ 71.700    
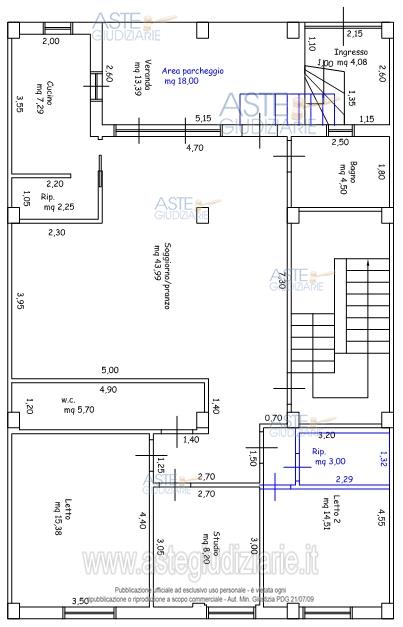
                Vendita all'asta Senza incanto, con gara telematica sincrona mista - LOTTO UNICO:  Unità immobiliare adibita a civile abitazione composta da un piano terra rialzato con sottotetto non abitabile mq 133 circa sita in Palma di Montechiaro con accesso da Via Pablo Neruda 14. NCEU Foglio 28 particella 3081 sub 2. Sussistono difformità urbanistiche e catastali (in particolare non sussiste certificato di agibilità/abitabilità – planimetria catastale non conforme allo stato di fatto dell’immobile – ape non presente) come descritto in Ctu cui si rinvia per maggiori dettagli. Occupato dal debitore. Prezzo base € 71.700,00 (offerta minima € 53.775,00). Data vendita 18/12/2025 ore 16:00. Giudice Dott. Vitalba Pipitone. Professionista delegato alla vendita Avv. Calogero Orlando - Email "avv.lillorlando@virgilio.it". Custode Giudiziario  Avv. Calogero Orlando - Email "avv.lillorlando@virgilio.it".  Rif. Tribunale di Agrigento - Esecuzione immobiliare post legge 80 n. 110/2023
            
   
| Superficie | mq | 
|---|---|
| Vani | |
| Bagni | |
| Piano | 0 | 
| Tipologia di vendita | Giudiziaria | 
|---|---|
| Modalità di vendita | Sincrona mista | 
| Termine presentazione offerte | 01/01/1900 ore 00:00 | 
| Data e ora inizio gara | 18/12/2025 ore 16:00 | 
 
                         
                         
                         
                         
                         
                         
                         
                         
                         
                         
                         
                         
                         
                         
                         
                         
                         
                         
                        