highlight_off
Riferimento annuncio 287263 info

Appartamento Via Galileo Galilei, 54, 92020 Palma di Montechiaro AG, Italia, 92044 Palma di Montechiaro (AG)

0
€ 56.378
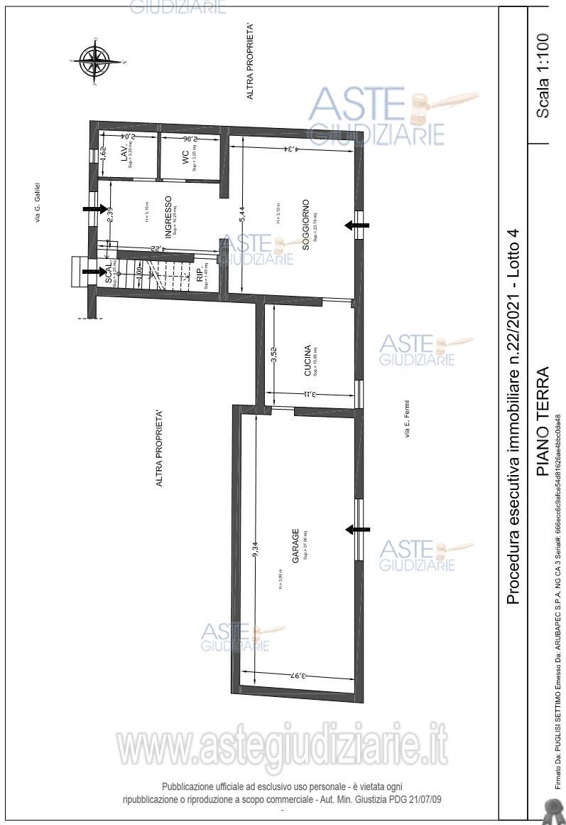
Vendita all'asta Senza incanto, con gara telematica sincrona mista - LOTTO 4: Piena proprietà di 1000/1000 di un fabbricato adibito a civile abitazione sito in Palma di Montechiaro in via Galileo Galilei. Il fabbricato, realizzato con struttura in muratura portante in conci di tufo, è accessibile da due ingressi che danno rispettivamente su via Galileo Galilei e su via Enrico Fermi. Il piano primo e secondo sono raggiungibili da una scala interna; identificato al catasto urbano del comune di Palma di Montechiaro al F.9 Part. 856, Sub 2, c. A/4.Pende domanda di Sanatoria Edilizia. Prezzo base € 56.377,69 (offerta minima € 42.283,27). Data vendita 12/01/2026 ore 10:00. Giudice Matteo De Nes. Professionista delegato alla vendita Dott. Patrizia Di Francesco - Email "patriziadif@libero.it"; Tel. 092229247. Custode Giudiziario Dott. Patrizia Di Francesco - Email "patriziadif@libero.it"; Tel. 092229247. Rif. Tribunale di Agrigento - Esecuzione immobiliare post legge 80 n. 22/2021

Superficie mq
Vani
Bagni
Piano 0

Tipologia di vendita Giudiziaria
Modalità di vendita Sincrona mista
Termine presentazione offerte 10/01/2026 ore 12:00
Data e ora inizio gara 12/01/2026 ore 10:00
Codice ID astegiudiziarie.it 4313977
0
€ 56.378

Ti interessa questa vendita?

north_east

Clicca qui per essere indirizzato alla scheda sul sito di provenienza

Bene di astegiudiziarie.it