highlight_off
Riferimento annuncio 296916 info

Appartamento Via Sediari, 101, 80036 Palma Campania NA, Italia, 80036 Palma Campania (NA)

5,00
248,00
2
0
€ 101.672
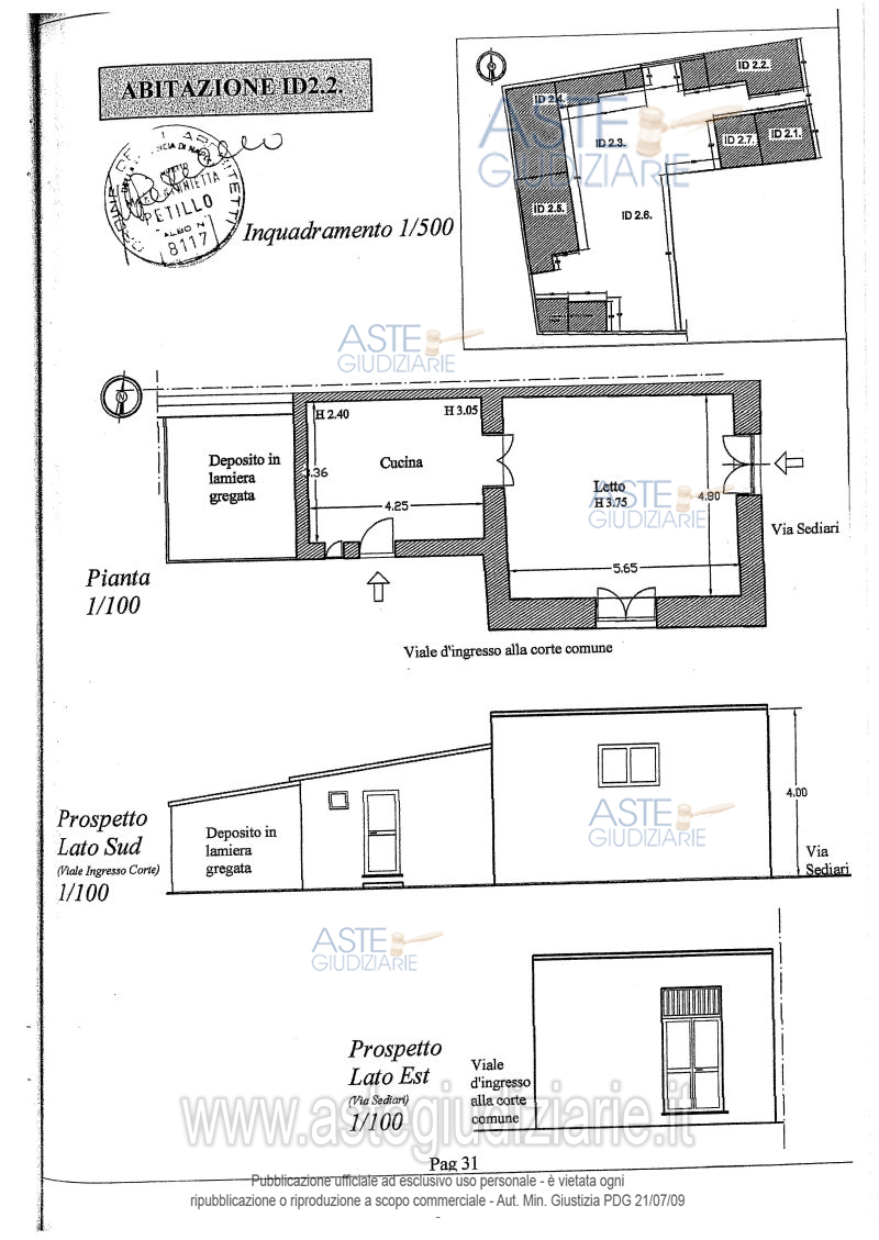
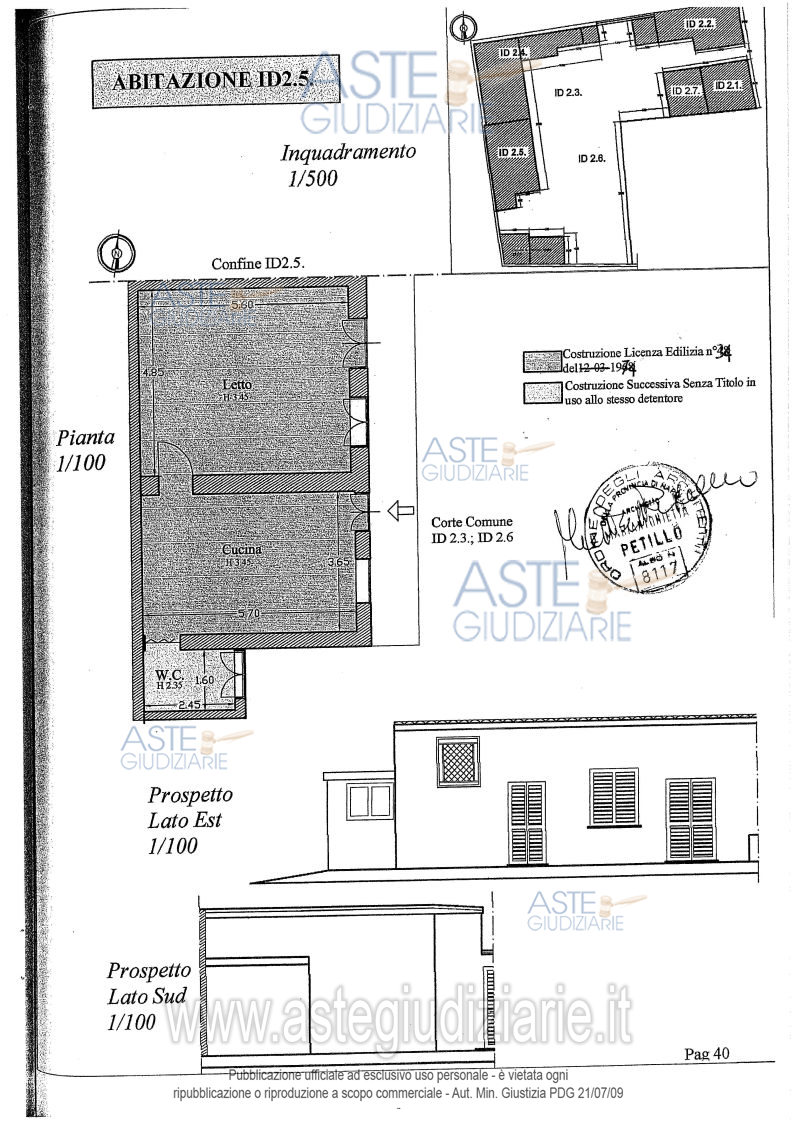
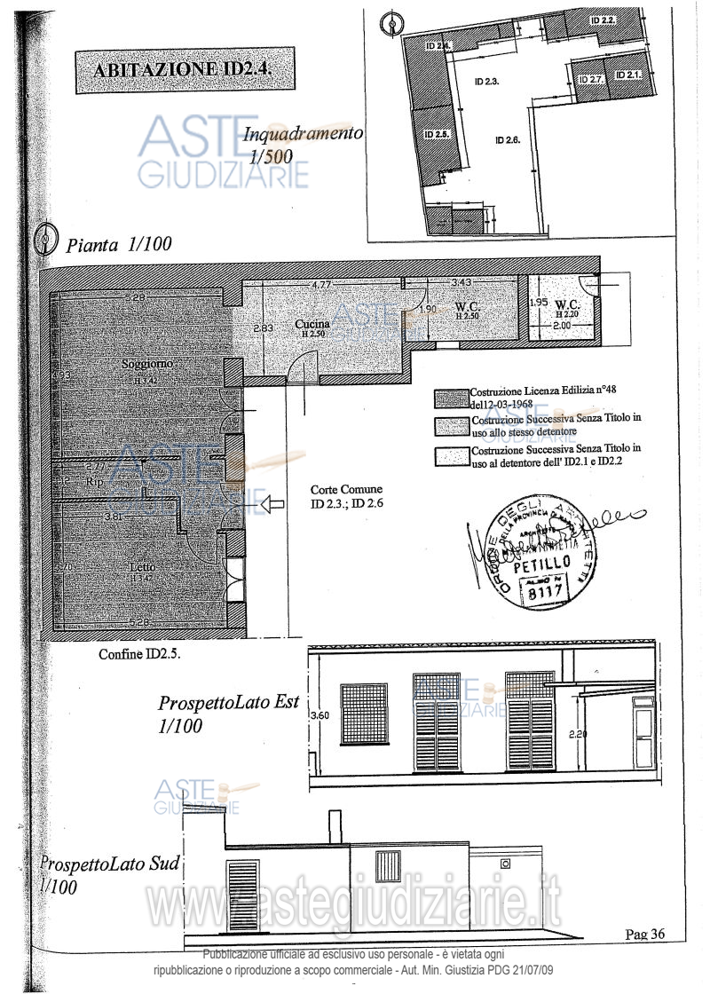
Vendita all'asta Senza incanto - LOTTO 2: Piena proprietà di cinque immobili presenti all’interno di una corte comune il tutto sito nel Comune di Palma Campania (NA) alla Via Sediari 101 / 107. Prezzo base € 101.671,87 (offerta minima € 76.253,90). Data vendita 10/12/2025 ore 16:00. Giudice Andrea Francesco Fabbri. Professionista delegato alla vendita Not. Andrea Valente - Email "richiestavisita@notaioandreavalente.it"; Tel. 081403504. Rif. Tribunale di Nola - Contenzioso civile n. 7160/2004

Superficie 248,00 mq
Vani 5,00
Bagni 2
Piano 0

Tipologia di vendita Giudiziaria
Modalità di vendita Presso il venditore
Termine presentazione offerte 01/01/1900 ore 00:00
Data e ora inizio gara 10/12/2025 ore 16:00
Codice ID astegiudiziarie.it 4321382
5,00
248,00
2
0
€ 101.672

Ti interessa questa vendita?

north_east

Clicca qui per essere indirizzato alla scheda sul sito di provenienza

Bene di astegiudiziarie.it