highlight_off
Riferimento annuncio 325820 info

Appartamento Via Monviso 9, 00036 Carchitti Palestrina RM, Italia, 00036 Palestrina (RM)

5,00
117,00
0
€ 72.000
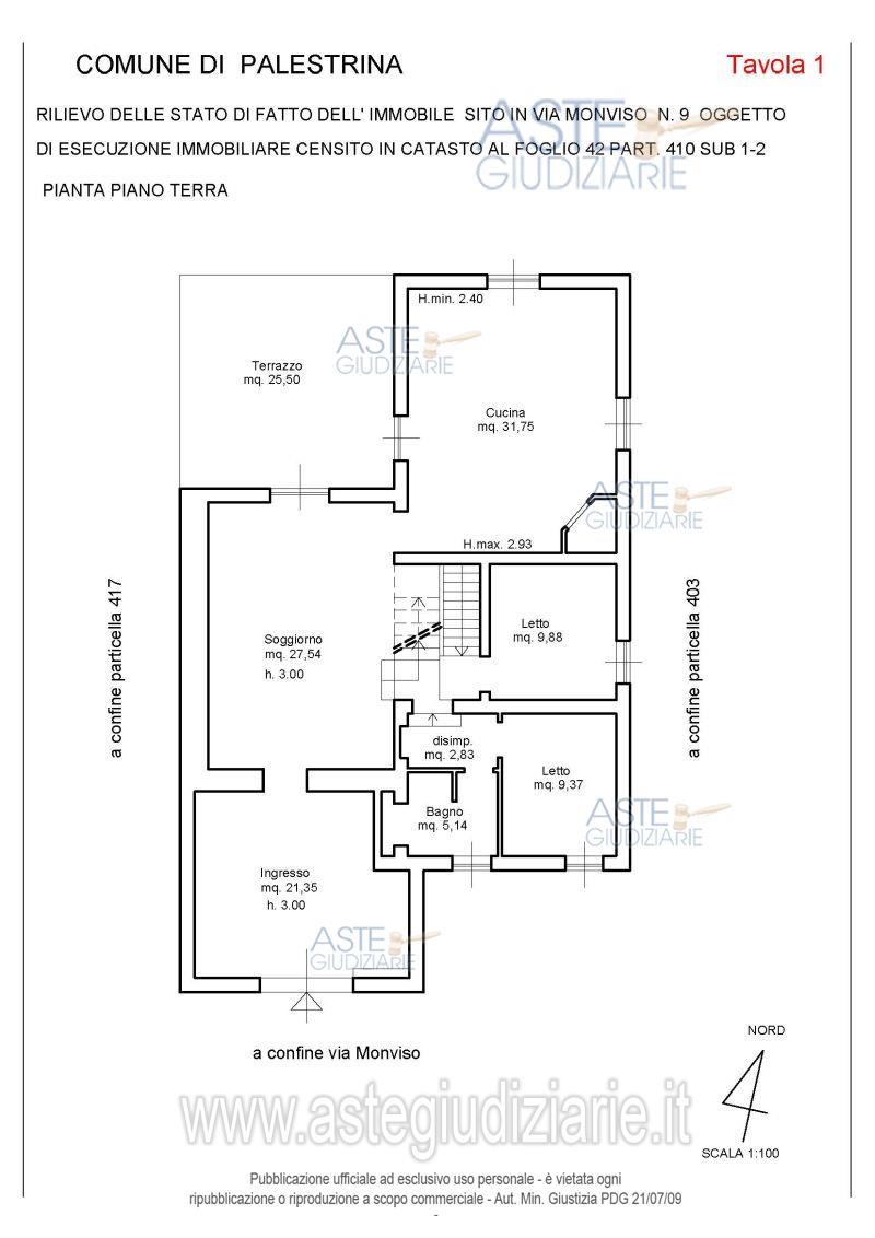
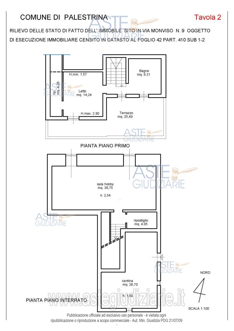
Vendita all'asta Senza incanto, con gara telematica asincrona - LOTTO 01: Quota pari a 1/1 del diritto di piena proprietà esclusiva sul seguente immobile sito in Palestrina (Roma), via Monviso n. 9, catastalmente ubicata su via 6 strada snc, e precisamente: Villetta identificata al Catasto Fabbricati Foglio 42, part. 410, Sub. 1, Categoria A/4, graffato con il sub 2, cl. 4, vani 5, sup. cat. 117 mq., R.C. euro 296,96, piano T-1-S1. Prezzo base € 72.000,00 (offerta minima € 54.000,00). Data inizio operazioni di vendita: 08/04/2026 ore 11:00. Giudice Dott. Marco Piovano. Professionista delegato alla vendita Avv. Diego Giugliano - Email "diego.giugliano@libero.it"; Tel. 0774335036. Custode Giudiziario Ivg Di Roma Srl - Email "pvp@visiteivgroma.it"; Tel. 0689569801. Rif. Tribunale di Tivoli - Espropriazione immobiliare (cartabia) n. 479/2024

Superficie 117,00 mq
Vani 5,00
Bagni
Piano 0

Tipologia di vendita Giudiziaria
Modalità di vendita Asincrona telematica
Termine presentazione offerte 01/01/1900 ore 00:00
Data e ora inizio gara 08/04/2026 ore 11:00
Codice ID astegiudiziarie.it 4344136
5,00
117,00
0
€ 72.000

Ti interessa questa vendita?

north_east

Clicca qui per essere indirizzato alla scheda sul sito di provenienza

Bene di astegiudiziarie.it