highlight_off
Riferimento annuncio 328626 info

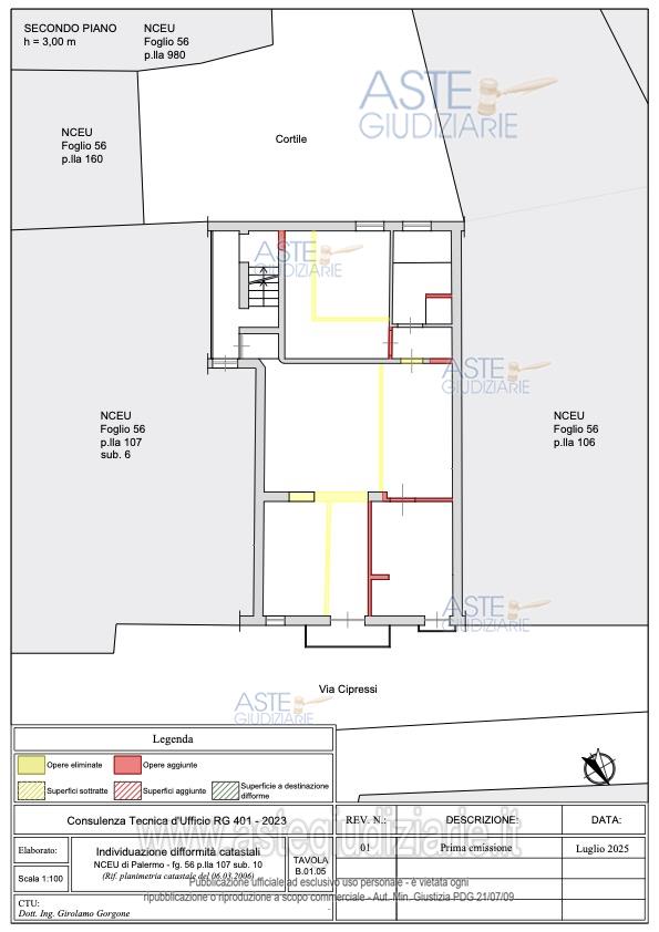
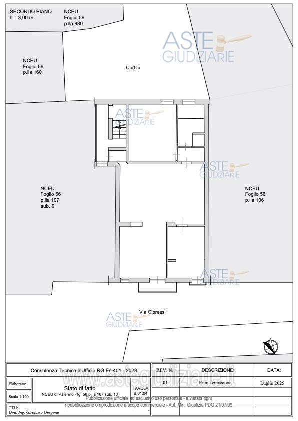
Appartamento Via Cipressi, 18, 90134 Palermo PA, Italia, 90100 Palermo (PA)

0
€ 29.726
Vendita all'asta Senza incanto, con gara telematica sincrona mista - LOTTO 2: abitazione di tipo popolare, sita in Palermo, Via Cipressi n. 18, ubicata al piano secondo. Prezzo base € 29.725,50 (offerta minima € 22.294,13). Data vendita 21/05/2026 ore 10:30. Professionista delegato alla vendita: Avv. Davide Garretto - Email "avv.garretto.aste@virgilio.it". Custode Giudiziario: Avv. Davide Garretto - Email "avv.garretto.aste@virgilio.it". Rif. Tribunale di Palermo - Espropriazione immobiliare (cartabia) n. 401/2023

Superficie mq
Vani
Bagni
Piano 0

Tipologia di vendita Giudiziaria
Modalità di vendita Sincrona mista
Termine presentazione offerte 01/01/1900 ore 00:00
Data e ora inizio gara 21/05/2026 ore 10:30
Codice ID astegiudiziarie.it 4345141
0
€ 29.726

Ti interessa questa vendita?

north_east

Clicca qui per essere indirizzato alla scheda sul sito di provenienza

Bene di astegiudiziarie.it