highlight_off
Riferimento annuncio 328044 info

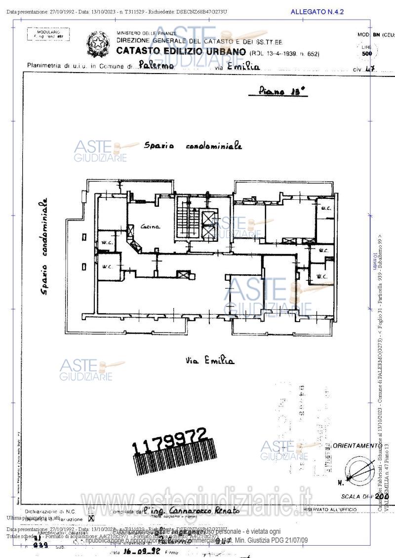
Appartamento Via Emilia, 47, 90144 Palermo PA, Italia, 90100 Palermo (PA)

11,50
324,00
0
€ 642.000
Vendita all'asta Senza incanto, con gara telematica sincrona mista - LOTTO 1: Piena proprietà dell’appartamento sito in Palermo, via Emilia n. 47, piano tredicesimo, composto da ampio salone, camera da pranzo, cinque camere, cucina, cinque servizi igienici, tre disimpegni, ripostiglio, veranda con cucina, un terrazzo e tre balconi, per una superficie utile pari a 255,00 mq. circa ed una superficie commerciale pari a 301,00 mq. circa. Prezzo base € 642.000,00 (offerta minima € 481.500,00). Data vendita 13/05/2026 ore 15:30. Professionista delegato alla vendita: Avv. Calogero Pisciotta - Email "pisciotta.avvocato@gmail.com". Rif. Tribunale di Palermo - Contenzioso civile n. 7979/2023

Superficie 324,00 mq
Vani 11,50
Bagni
Piano 0

Tipologia di vendita Giudiziaria
Modalità di vendita Sincrona mista
Termine presentazione offerte 12/05/2026 ore 13:00
Data e ora inizio gara 13/05/2026 ore 15:30
Codice ID astegiudiziarie.it 4345999
11,50
324,00
0
€ 642.000

Ti interessa questa vendita?

north_east

Clicca qui per essere indirizzato alla scheda sul sito di provenienza

Bene di astegiudiziarie.it