highlight_off
Riferimento annuncio 320068 info

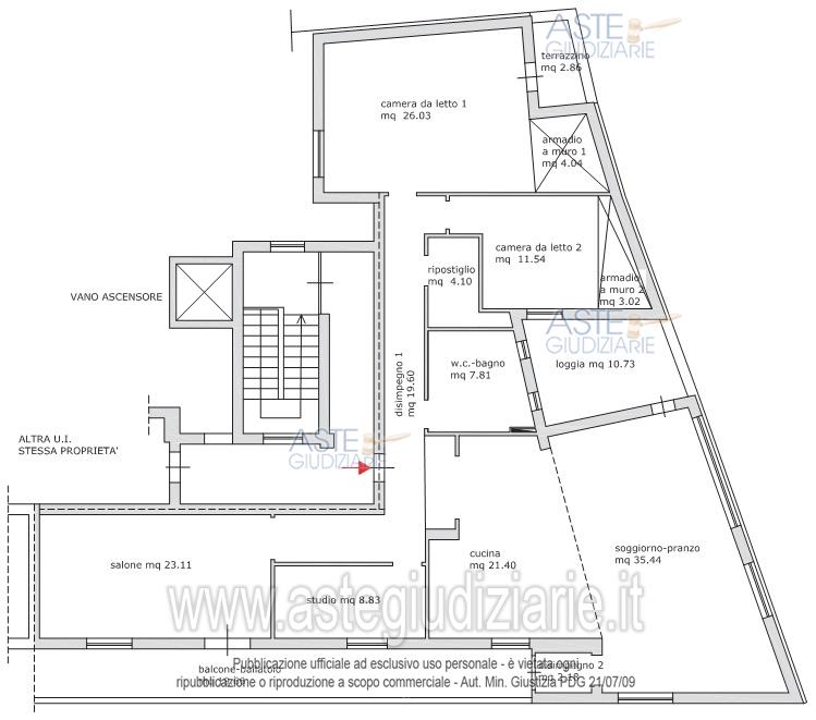
Appartamento Via Serraglio Vecchio, 28, 90123 Palermo PA, Italia, 90100 Palermo (PA)

7,00
201,00
9
€ 176.000
Vendita all'asta Senza incanto, con gara telematica sincrona mista - LOTTO 2: Piena proprietà dell'appartamento sito in Palermo, via Serraglio Vecchio n. 28, scala A, piano 9. Prezzo base € 176.000,00 (offerta minima € 132.000,00). Data vendita 15/01/2026 ore 16:00. Professionista delegato alla vendita Avv. Marzia Siracusa - Email "infovenditedelegate@gmail.com"; Tel. 0916256095. Custode Giudiziario Avv. Marzia Siracusa - Email "infovenditedelegate@gmail.com"; Tel. 0916256095. Rif. Tribunale di Palermo - Esecuzione immobiliare post legge 80 n. 90/2023

Superficie 201,00 mq
Vani 7,00
Bagni
Piano 9

Tipologia di vendita Giudiziaria
Modalità di vendita Sincrona mista
Termine presentazione offerte 01/01/1900 ore 00:00
Data e ora inizio gara 15/01/2026 ore 16:00
Codice ID astegiudiziarie.it 4339782
7,00
201,00
9
€ 176.000

Ti interessa questa vendita?

north_east

Clicca qui per essere indirizzato alla scheda sul sito di provenienza

Bene di astegiudiziarie.it