highlight_off
Riferimento annuncio 319861 info

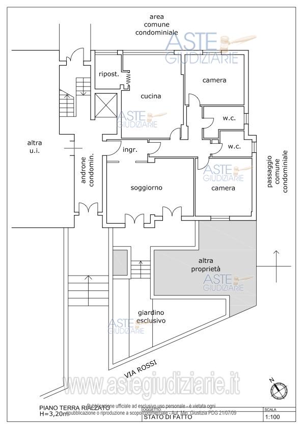
Appartamento Via Rossi, 22, 90147 Palermo PA, Italia, 90100 Palermo (PA)

25,62
0
€ 116.000
Vendita all'asta Senza incanto, con gara telematica sincrona mista - LOTTO 1: LOTTO 1: appartamento di civile abitazione sito in Palermo via Rossi n. 22 piano T, identificato al NCEU foglio di mappa 7 p.lla 268 sub 2 graffata con p.lla 853 cat. A/2 consistenza 6 vani, rendita catastale 433,82, Tot. Superfice commerciale 128,03 mq di cui giardino pertinenziale 25,62 mq. Prezzo base € 116.000,00 (offerta minima € 87.000,00). Data vendita 22/04/2026 ore 14:30. Professionista delegato alla vendita Avv. Marzia Rizzo - Email "avvocatorizzomarzia@gmail.com"; Tel. 3807980564. Custode Giudiziario Avv. Marzia Rizzo - Email "avvocatorizzomarzia@gmail.com"; Tel. 3807980564. Rif. Tribunale di Palermo - Esecuzione immobiliare post legge 80 n. 116/2023

Superficie 25,62 mq
Vani
Bagni
Piano 0

Tipologia di vendita Giudiziaria
Modalità di vendita Sincrona mista
Termine presentazione offerte 21/04/2026 ore 13:00
Data e ora inizio gara 22/04/2026 ore 14:30
Codice ID astegiudiziarie.it 4339754
25,62
0
€ 116.000

Ti interessa questa vendita?

north_east

Clicca qui per essere indirizzato alla scheda sul sito di provenienza

Bene di astegiudiziarie.it