highlight_off
Riferimento annuncio 315889 info

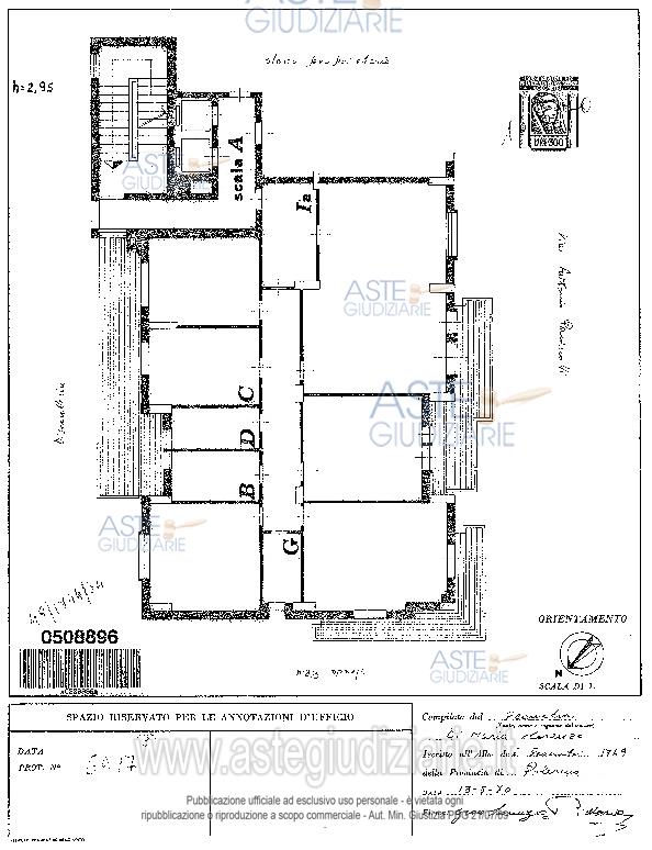
Appartamento Via Antonio Pacinotti, 94, 90145 Palermo PA, Italia, 90100 Palermo (PA)

10
€ 307.000
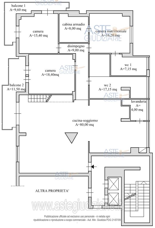
Vendita all'asta Senza incanto, con gara telematica sincrona mista - LOTTO UNICO: Piena proprietà dell'appartamento sito in Palermo, via Antonio Pacinotti n. 94, scala A, piano decimo. Prezzo base € 307.000,00 (offerta minima € 230.250,00). Data vendita 20/11/2025 ore 14:45. Professionista delegato alla vendita Avv. Marzia Siracusa - Email "infovenditedelegate@gmail.com"; Tel. 0916256095. Custode Giudiziario Avv. Marzia Siracusa - Email "infovenditedelegate@gmail.com"; Tel. 0916256095. Rif. Tribunale di Palermo - Espropriazione immobiliare (cartabia) n. 408/2024

Superficie mq
Vani
Bagni
Piano 10

Tipologia di vendita Giudiziaria
Modalità di vendita Sincrona mista
Termine presentazione offerte 01/01/1900 ore 00:00
Data e ora inizio gara 20/11/2025 ore 14:45
Codice ID astegiudiziarie.it 4336188
10
€ 307.000

Ti interessa questa vendita?

north_east

Clicca qui per essere indirizzato alla scheda sul sito di provenienza

Bene di astegiudiziarie.it