highlight_off
Riferimento annuncio 313012 info

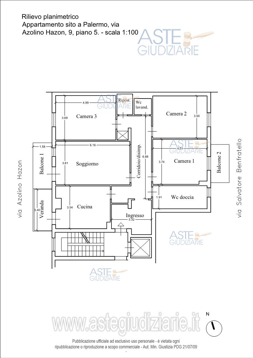
Appartamento Via Azolino Hazon, 9, 90124 Palermo PA, Italia, 90100 Palermo (PA)

0
€ 123.212
Vendita all'asta Senza incanto, con gara telematica sincrona mista - LOTTO UNICO: piena proprietà appartamento, ubicato in Palermo, via Azolino Hazon n. 9, piano quinto. Composto da ingresso, corridoio, tre camere, soggiorno, cucina, un servizio igienico, un wc/lavanderia e un ripostiglio, nonché due balconi esterni, di cui uno parzialmente verandato. Prezzo base € 123.212,00 (offerta minima € 92.409,00). Data vendita 23/10/2025 ore 09:30. Giudice Fabrizio Minutoli. Professionista delegato alla vendita Avv. Valentina Spera - Email "valentina.spera@virgilio.it"; Cell. 3334121271; Tel. 0916497440. Custode Giudiziario Avv. Valentina Spera - Email "valentina.spera@virgilio.it"; Cell. 3334121271; Tel. 0916497440. Rif. Tribunale di Palermo - Esecuzione immobiliare post legge 80 n. 299/2023

Superficie mq
Vani
Bagni
Piano 0

Tipologia di vendita Giudiziaria
Modalità di vendita Sincrona mista
Termine presentazione offerte 22/10/2025 ore 13:00
Data e ora inizio gara 23/10/2025 ore 09:30
Codice ID astegiudiziarie.it 4333597
0
€ 123.212

Ti interessa questa vendita?

north_east

Clicca qui per essere indirizzato alla scheda sul sito di provenienza

Bene di astegiudiziarie.it