highlight_off
Riferimento annuncio 304794 info

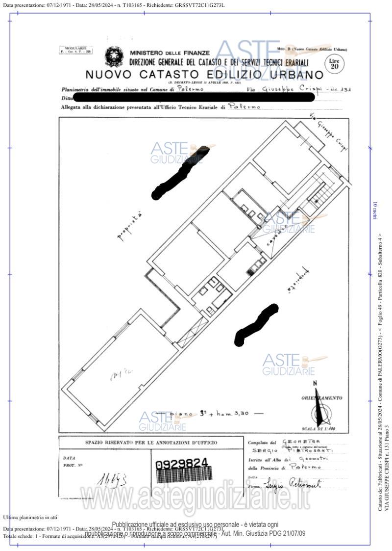
Appartamento Via Giuseppe Crispi, 131, 90145 Palermo PA, Italia, 90100 Palermo (PA)

5,00
142,00
3
€ 56.950
Vendita all'asta Competitiva - LOTTO 1: Appartamento sito in Palermo, Via Giuseppe Crispi, n.131, piano terzo identificato al N.C.E.U. del Comune di Palermo al foglio 49, particella 820, sub. 4, rendita catastale € 147,19, categoria A/4. Prezzo base € 56.950,00 (offerta minima € 48.407,50). Data vendita 16/10/2025 ore 16:00. Rif. Tribunale di Palermo - Liquidazione controllata(cci) n. 23/2023

Superficie 142,00 mq
Vani 5,00
Bagni
Piano 3

Tipologia di vendita Giudiziaria
Modalità di vendita Presso il venditore
Termine presentazione domande 01/01/1900 ore 00:00
Data e ora inizio gara 16/10/2025 ore 16:00
Codice ID astegiudiziarie.it 4327608
5,00
142,00
3
€ 56.950

Ti interessa questa vendita?

north_east

Clicca qui per essere indirizzato alla scheda sul sito di provenienza

Bene di astegiudiziarie.it