highlight_off
Riferimento annuncio 294608 info

Appartamento Corso dei Mille 1401/c, 90100 Palermo (PA)

0
€ 86.521
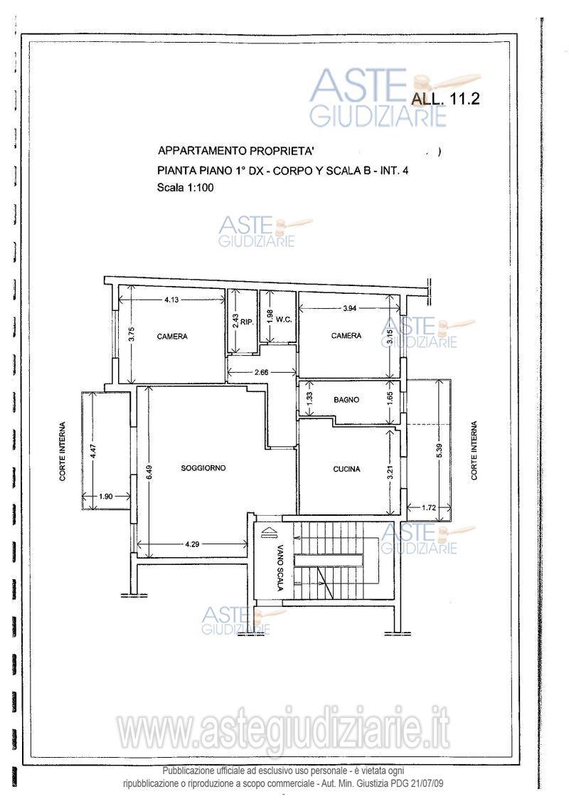
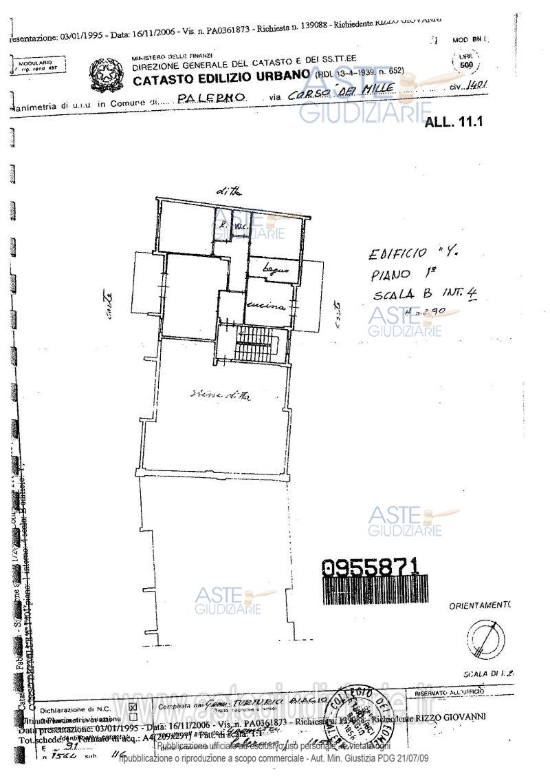
Vendita all'asta Senza incanto - LOTTO 1: Diritto di enfiteusi dell'appartamento in Palermo, corso dei Mille 1401/c, Corpo Y, sc. B, oggi D, piano 1 a destra, int. 3, composto da ingresso, soggiorno, corridoio, cucina, 2 camere da letto, 2 servizi igienici e ripostiglio. Esteso 106,65 mq. oltre 2 balconi di sup. complessiva di 17,75 mq. Al N.C.E.U. di Palermo al fg 91 p.lla 1564 sub 116 Ctg A/2 vani 5,5 r.c. € 426,08 con pertinenziale posto auto coperto sup. comm. 19,20 al N.C.E.U. al fg. 91 p.lla 1564 sub 123 ctg C/6 r.c. € 21,95 . Prezzo base € 86.521,00 (offerta minima € 64.890,75). Data vendita 18/11/2025 ore 09:30. Professionista delegato alla vendita Avv. Maria Roccheri - Email "mariaroccheri@gmail.com"; Tel. 091326319. Custode Giudiziario Avv. Maria Roccheri - Email "mariaroccheri@gmail.com"; Tel. 091326319. Rif. Tribunale di Palermo - Esecuzione immobiliare post legge 80 n. 175/2006

Superficie mq
Vani
Bagni
Piano 0

Tipologia di vendita Giudiziaria
Modalità di vendita Presso il venditore
Termine presentazione offerte 01/01/1900 ore 00:00
Data e ora inizio gara 18/11/2025 ore 09:30
Codice ID astegiudiziarie.it 2807416
0
€ 86.521

Ti interessa questa vendita?

north_east

Clicca qui per essere indirizzato alla scheda sul sito di provenienza

Bene di astegiudiziarie.it