Riferimento annuncio 281690
        
    
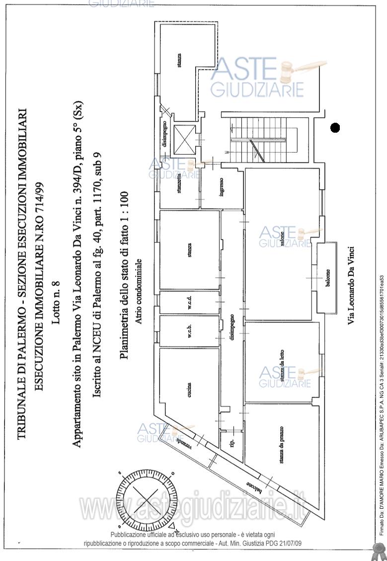
    Appartamento Via Leonardo Da Vinci, 394/D, 90100 Palermo (PA)
                
                5
            
        
€ 127.000    
                Vendita all'asta Senza incanto, con gara telematica sincrona mista - LOTTO 8:  Immobile sito in Palermo, via Leonardo Da Vinci n. 394/D, piano quinto. Prezzo base € 127.000,00 (offerta minima € 95.250,00). Data vendita 06/11/2025 ore 13:30. Professionista delegato alla vendita Avv. Marzia Siracusa - Email "infovenditedelegate@gmail.com"; Tel. 0916256095. Custode Giudiziario  Avv. Marzia Siracusa - Email "infovenditedelegate@gmail.com"; Tel. 0916256095.  Rif. Tribunale di Palermo - Esecuzione immobiliare post legge 80 n. 714/1999
            
   
| Superficie | mq | 
|---|---|
| Vani | |
| Bagni | |
| Piano | 5 | 
| Tipologia di vendita | Giudiziaria | 
|---|---|
| Modalità di vendita | Sincrona mista | 
| Termine presentazione offerte | 05/11/2025 ore 12:30 | 
| Data e ora inizio gara | 06/11/2025 ore 13:30 | 
 
                         
                         
                        